Property Description
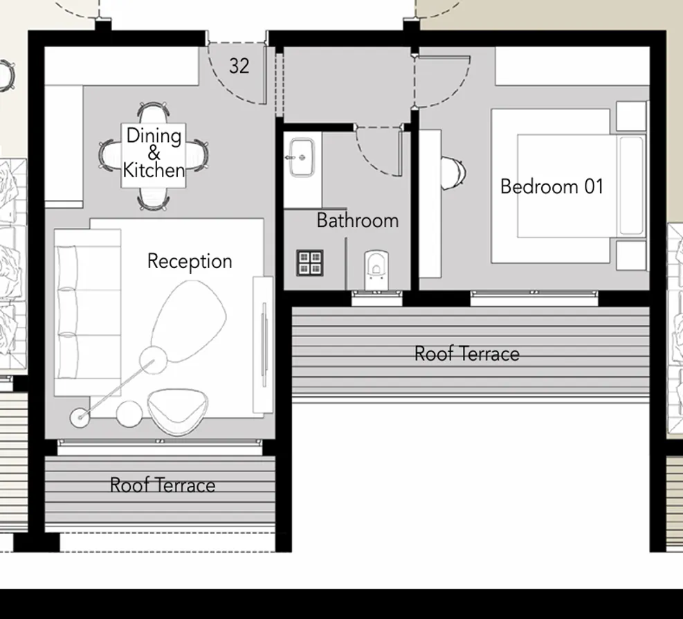
Step into this fully finished one-bedroom penthouse, a true retreat perched high above PX by Palm Hills in 6th of October. With 60 SQM of thoughtfully designed living space, one bathroom, and two private roof terraces (14 SQM), every inch of this home is crafted for comfort and style. The moment you enter, sunlight pours through expansive windows, illuminating the open-plan living and dining area—perfect for both quiet mornings and lively evenings. The roof terrace is your personal vantage point, offering a breathtaking view that stretches across the city, making every sunset a private show. Premium finishes, from sleek flooring to elegant fixtures, set a sophisticated tone throughout. The bedrooms are tucked away for privacy, while the master suite offers a tranquil escape after a long day. Whether you’re hosting friends under the stars or savoring a peaceful cup of coffee at dawn, this penthouse at PX Palm Hills is where elevated living meets everyday ease. Here, PX Palm Hills and PX blend seamlessly to create a home that feels both exclusive and welcoming, right in the heart of a vibrant community.
Compound Description
Luxury & Services
PX by Palm Hills is more than a residential address—it’s a destination where luxury and thoughtful service shape every aspect of daily life. The moment you arrive, the sense of arrival is unmistakable: tree-lined boulevards, attentive security, and a concierge team that remembers your preferences. The clubhouse stands as the social heart of the community, offering everything from a state-of-the-art fitness center to a serene spa and wellness lounge. Residents can unwind by the infinity pool, host gatherings in elegant event spaces, or enjoy curated dining experiences just steps from home. For families, PX delivers peace of mind with dedicated kids’ zones, outdoor play areas, and after-school programs that foster connection and creativity. Everyday errands are effortless thanks to on-site retail, a gourmet grocer, and even a pharmacy within walking distance. The compound’s commitment to comfort extends to smart-home features, energy-efficient lighting, and round-the-clock maintenance. PX’s location in 6th of October means you’re under 12 minutes from Mall of Arabia, close to top schools like Heritage International, and within easy reach of leading medical centers such as Dar Al Fouad Hospital. Here, luxury isn’t just about finishes—it’s about a lifestyle where every detail is considered, and every service is designed to elevate your day. For a complete overview of PX’s amenities and lifestyle, explore PX Palm Hills.










