Property Description
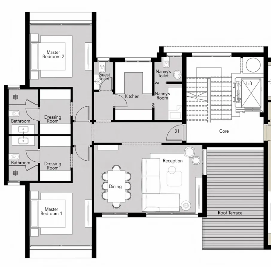
Step into this fully finished two-bedroom penthouse, a true retreat perched within PX by Palm Hills in the heart of 6th of October. Spanning 139 SQM, this home is designed for those who crave both comfort and sophistication. Three bathrooms ensure privacy and ease for every member of the household, while a dedicated nanny’s room with its own bath adds a thoughtful touch for families. The highlight? A 20 SQM roof terrace that opens up to sweeping, breathtaking views—imagine evenings spent under the open sky, or quiet mornings with a coffee as the city wakes up below. The flow between living and dining spaces is seamless, inviting natural light to dance across every corner. Premium finishes, from sleek surfaces to subtle metallic accents, create an atmosphere that feels both elevated and warmly inviting. Here, every detail is considered, from the placement of windows that frame the landscape to the intuitive layout that makes daily life feel effortless. This is PX Palm Hills living—where the everyday feels extraordinary, and every return home is a moment to savor.
Compound Description
Luxury & Services
PX by Palm Hills isn’t just a collection of homes—it’s a living environment where luxury and service are woven into the fabric of daily life. From the moment you arrive, the sense of arrival is unmistakable: manicured boulevards, attentive security, and a concierge team ready to help with everything from deliveries to dinner reservations. The clubhouse stands as the social heart of the community, offering a blend of wellness facilities, a sparkling pool, and exclusive lounges where neighbors become friends. For families, the children’s play zones and dedicated event spaces mean every weekend can bring a new adventure, while adults can unwind in the spa or enjoy curated dining experiences just steps from their door. PX’s location in 6th of October ensures you’re never far from the essentials—Dar Al Fouad Hospital is under 12 minutes away, while top schools like Heritage International School are within a short drive. Retail therapy is close at hand, with Mall of Arabia reachable in about 8 minutes. The compound’s commitment to service extends to smart-home integration, 24/7 maintenance, and community programming that brings residents together for seasonal events and workshops. Here, luxury isn’t just about finishes—it’s about the ease, comfort, and connection that define every day. For a complete overview of PX’s amenities and lifestyle, explore PX Palm Hills.















