Property Description
Step inside this expansive five-bedroom villa, thoughtfully spread across 518 SQM in Palm Hills New Cairo by Palm Hills, right in the heart of New Cairo. Here, the layout flows seamlessly from one sunlit space to the next, with six bathrooms ensuring comfort for every family member and guest. The home’s three terraces open up to sweeping views, inviting you to savor morning coffee or evening breezes in total privacy. A dedicated nanny’s room, driver’s suite, and guest quarters—each with its own bathroom—add thoughtful touches for modern living. The 152 SQM roof terrace is a true highlight, perfect for gatherings under the stars or quiet moments above the city. Step outside to your private garden, where the day’s stress melts away and family rituals find their rhythm. Every detail, from the generous proportions to the natural light that dances through the rooms, is designed for both celebration and retreat. This villa isn’t just a place to live—it’s a canvas for your family’s best moments, set within the vibrant community of Palm Hills New Cairo.
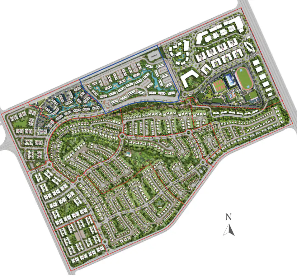
Compound Description
Location & Connectivity
Palm Hills New Cairo stands out for its exceptional location, connecting you effortlessly to the pulse of New Cairo and the promise of the New Capital. Positioned along the Middle Ring Road, the community offers direct routes to major destinations—whether you’re heading to work, school, or a weekend escape. The separate commercial entrance keeps daily commutes smooth and stress-free, while the compound’s vantage point gives you panoramic views of both established neighborhoods and the city’s future. Imagine being just 17 km from the German University in Cairo, 26 km from the American University in Cairo, and under 40 minutes from Cairo International Airport. Even Palm Hills Katameya is only 11 km away, making visits with friends or family a breeze. Within the community, you’ll find everything you need close at hand: King’s School New Cairo for quality education, a fully equipped sports club, and a vibrant commercial hub for shopping and dining. The master plan weaves together green parks, scenic trails, and tranquil gardens, so your daily routine feels both connected and restorative. Whether you’re drawn by the ease of access, the thoughtful planning, or the sense of belonging, Palm Hills New Cairo is more than a destination—it’s a gateway to a life well-lived. For a complete overview of Palm Hills New Cairo’s amenities and lifestyle, explore Palm Hills New Cairo.



















