Property Description
Step into this fully finished three-bedroom penthouse, thoughtfully designed across 200 SQM, where every detail feels intentional and welcoming. Located in Palm Hills New Cairo by Palm Hills, right in the heart of New Cairo, this home offers three bathrooms, a dedicated nanny’s room with its own bath, and a sweeping terrace that frames a breathtaking view—your own private stage for sunrise coffees or evening gatherings. The spacious roof terrace (34 SQM) invites you to unwind under open skies, while the layout flows seamlessly from sunlit living areas to quiet, restful bedrooms. Natural light pours in through generous windows, illuminating premium finishes and creating a sense of calm that lingers throughout the day. Whether you’re hosting friends or savoring a quiet moment, the blend of indoor comfort and outdoor connection makes every day feel special. Here, the rhythm of family life finds its perfect pace, with space for everyone to grow, relax, and celebrate together—all within the vibrant setting of Palm Hills New Cairo.
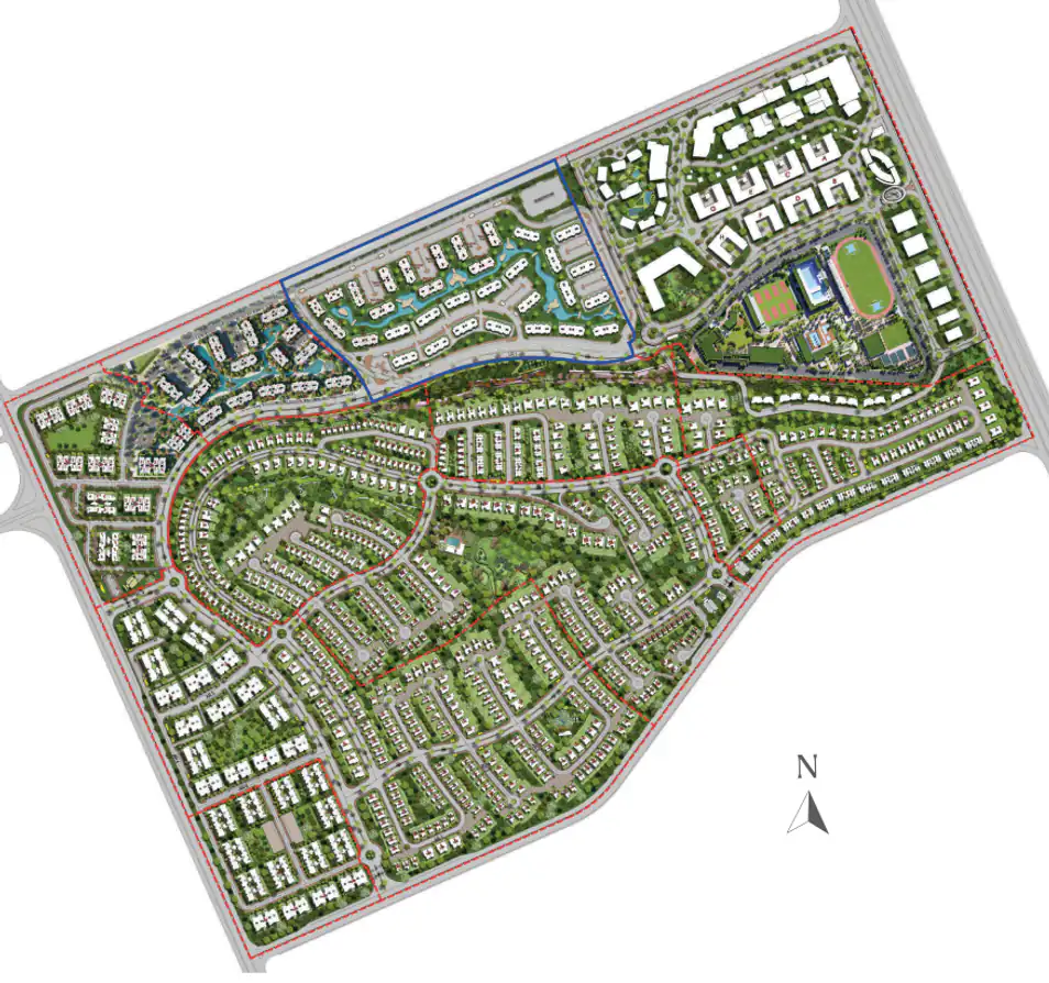
Compound Description
Location & Connectivity
Palm Hills New Cairo stands as a beacon of convenience and connectivity, perfectly positioned for those who value both tranquility and access. Nestled along the Middle Ring-Road, the community offers direct routes to the pulse of New Cairo and the promise of the New Capital City. Commuting is refreshingly simple—whether you’re heading to the German University in Cairo (just 17 km away), the American University in Cairo (26 km), or catching a flight from Cairo International Airport (36 km). Even Palm Hills Katameya is within easy reach at only 11 km. The compound’s separate commercial entrance keeps daily traffic flowing smoothly, so residents and guests enjoy a sense of arrival without the usual city bustle. Everyday essentials are close at hand: King’s School New Cairo for top-tier education, professional healthcare, and a vibrant mix of shopping and dining venues. The masterplan weaves residential and commercial spaces together, ensuring that work, leisure, and family life are always within arm’s reach. For those who crave a balanced lifestyle, Palm Hills New Cairo delivers—offering not just a home, but a gateway to everything that matters. The community’s thoughtful placement means you’re never far from what you need, yet always able to retreat into peaceful, green surroundings. For a complete overview of Palm Hills New Cairo’s amenities and lifestyle, explore Palm Hills New Cairo.



















