Property Description
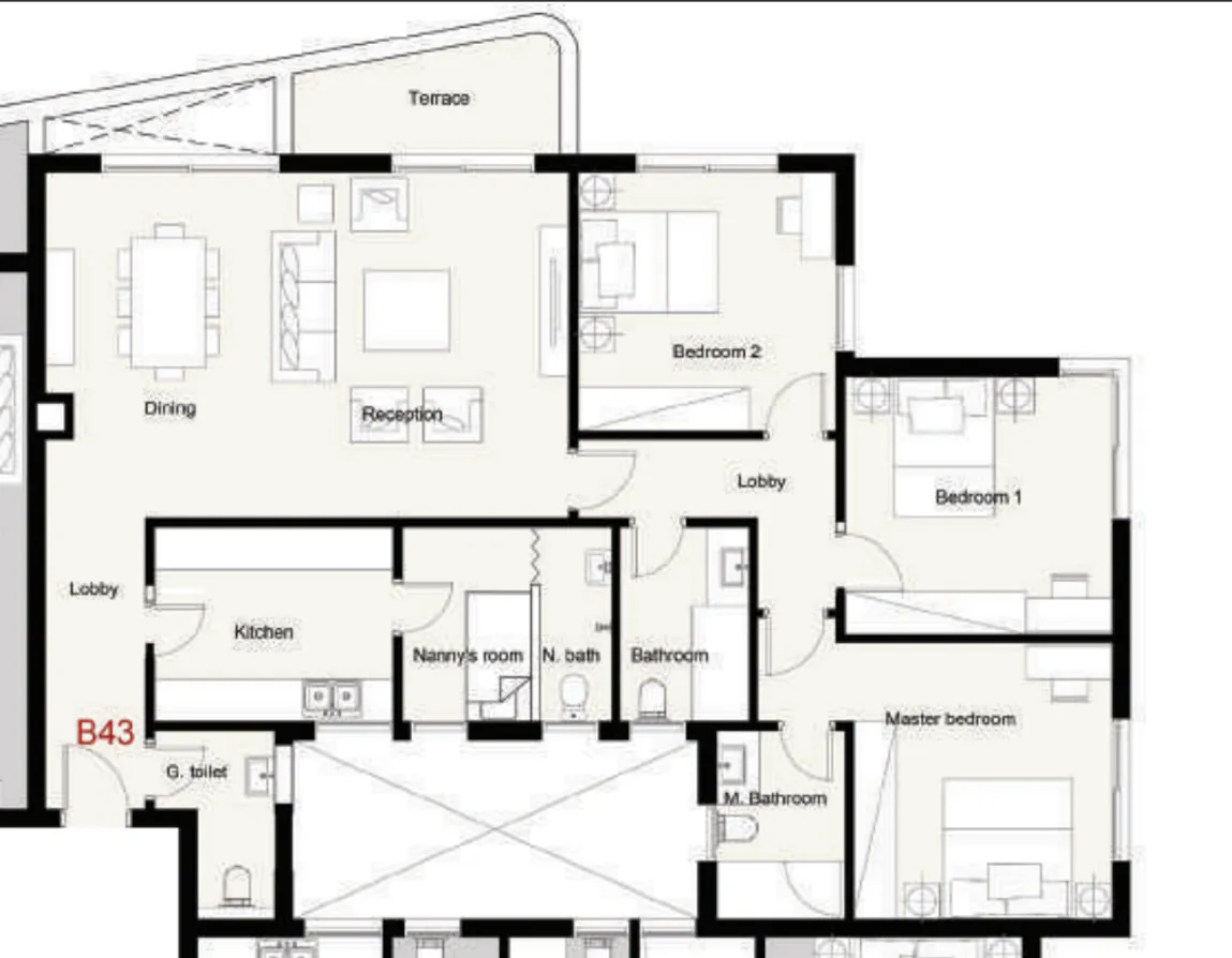
Step into this fully finished three-bedroom apartment, thoughtfully designed across 174 SQM, where comfort and style meet in the heart of Palm Hills New Cairo by Palm Hills in New Cairo. With three bathrooms, a dedicated nanny’s room with its own bath, and a sweeping terrace that frames a breathtaking view, this residence feels like a private retreat within the vibrant rhythm of city life. The open-plan living and dining area flows naturally, inviting sunlight to dance across every corner, while the terrace becomes your morning sanctuary or evening escape. The kitchen is tucked conveniently yet remains connected to the social heart of the home, making daily rituals and family gatherings effortless. Each bedroom is a haven, with the master suite offering a sense of calm and privacy. Premium finishes throughout add a subtle touch of luxury, while the thoughtful layout ensures every space feels purposeful. Whether you’re hosting friends for a sunset gathering on the terrace or savoring quiet moments with family, this apartment in Palm Hills New Cairo is crafted for those who appreciate both elegance and everyday function. Here, every detail—from the flow of the rooms to the orientation of the windows—has been considered to elevate your experience of home.
Compound Description
Community & Lifestyle
Palm Hills New Cairo is more than a collection of homes—it’s a living, breathing community designed for connection and belonging. Life here unfolds at a gentle pace, with leafy parks and winding trails inviting you to pause and reconnect with nature or neighbors. The masterplan dedicates generous green spaces and thoughtfully placed community hubs, so every stroll feels like a chance to discover something new or simply unwind beneath the trees. Families gather in shaded playgrounds, friends meet for coffee at the vibrant community center, and children’s laughter echoes along the walking paths. The sense of togetherness is woven into daily life, supported by curated events and seasonal festivals that bring residents together in celebration. Education and wellness are at the heart of the community, with King’s School New Cairo offering a world-class learning environment just minutes from your door, and a modern sports club providing spaces for fitness and play. Everyday essentials are always within reach—whether it’s shopping at boutique stores, dining at local favorites, or accessing professional healthcare. Here’s a glimpse of what residents enjoy:
- Expansive Ridge Park and Lifestyle Park for outdoor activities
- Interconnected walking and cycling trails
- Dedicated community center with social programming
- Onsite spa and wellness facilities
- Family-friendly cafes and dining options Palm Hills New Cairo is a place where neighbors become friends, and every day brings new opportunities to connect, grow, and thrive. For a complete overview of Palm Hills New Cairo’s amenities and lifestyle, explore Palm Hills New Cairo.



















