12
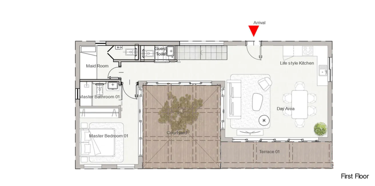
A charming and vibrant, fully finished four-bedroom upper villa (225 SQM), featuring five bathrooms that includes a nanny's room with its own bathroom and three terraces overlooking a breathtaking view, offering an exceptional outdoor experience, Located in Hacienda Heneish.
Community:
CompoundHacienda Heneish, Alexandria - Marsa Matrouh Road, Mersa Matruh, Egypt
Property Type:
DuplexBuilding Total Floors:
4Property Floor:
1Bedrooms:
4Bathrooms:
5Balconies:
3Area:
225 m2
Property Code:
0B0001780
Expected Price:
32,466,000 EGP Payment Options:
Down Payment and InstallmentsDown Payment:
1,623,300 EGPInstallments Amount:
367,175 EGP / Month Installments Duration:
7 yearsDelivery Date:
2029Finishing:
Fully Finished
Furnishing:
Unfurnished
No Brokers | No Commissions












