Property Description
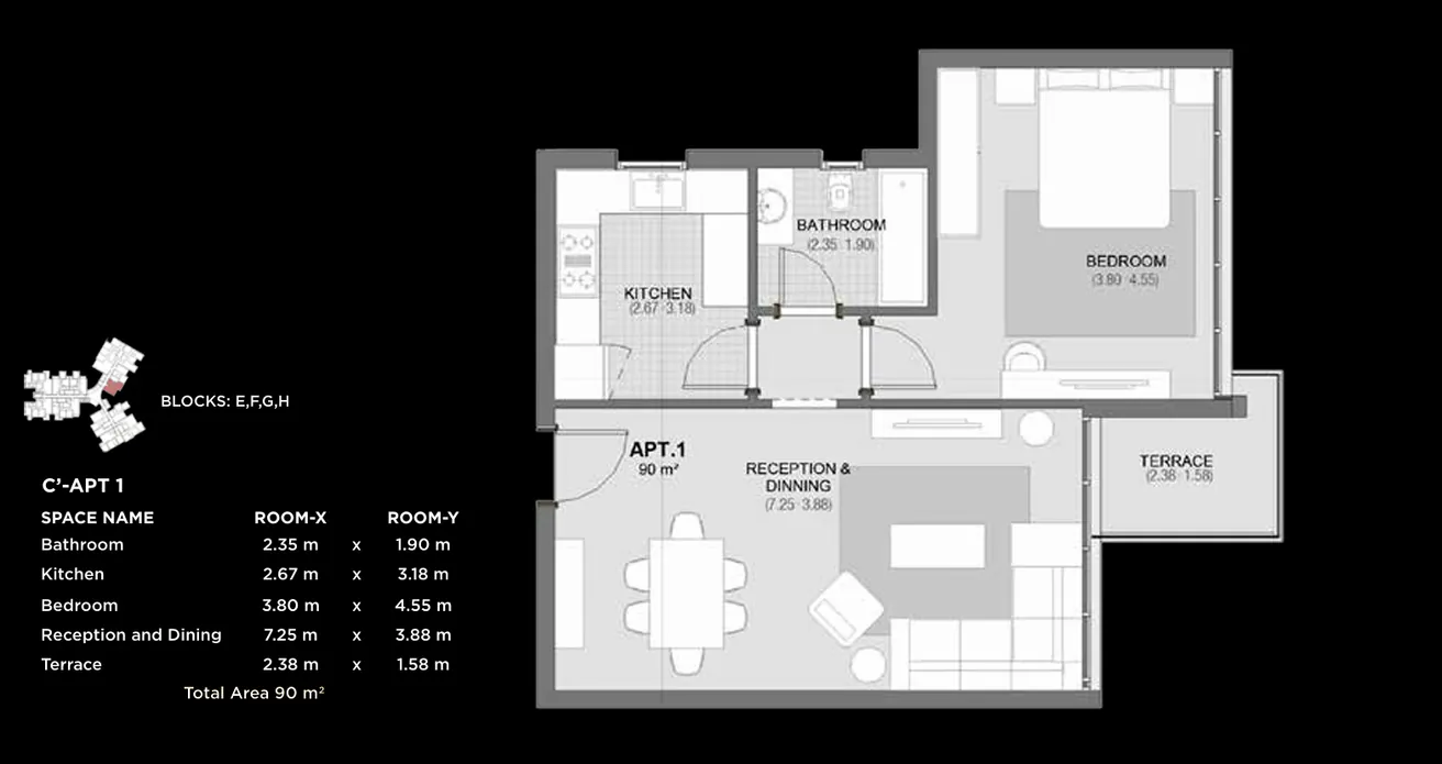
Step inside this inviting one-bedroom apartment, thoughtfully flexi finished and spanning 90 SQM, nestled in The Capitalway by Waterway in the heart of New Administrative Capital. The Capital Way welcomes you with a sense of calm from the moment you enter, thanks to a layout that flows effortlessly from the entrance to the sunlit living area. Morning light pours in through wide windows, illuminating every corner and making daily rituals feel special. The single bathroom is elegantly appointed, while the terrace opens to a breathtaking view—an outdoor retreat perfect for quiet reflection or sharing coffee with a friend. Here, the connection between indoor comfort and outdoor beauty is seamless, inviting you to pause and savor the moment. Whether you’re starting out or seeking a peaceful city base, this residence offers both privacy and a gentle rhythm to your days. The thoughtful integration of space, light, and views makes it more than just a home—it’s a place where you can truly unwind and recharge, all within the vibrant setting of The Capitalway.
Compound Description
Wellness & Environment
The Capitalway is designed as a living environment where wellness and nature are woven into daily life. From the moment you arrive, lush green spaces and water features set a tranquil tone, with only 17% of the land built upon—leaving the rest for gardens, walking trails, and open air. Residents enjoy a holistic lifestyle, with amenities that nurture both body and mind. The indoor spa is a haven for relaxation, while the modern fitness center keeps you energized. Families find joy in dedicated kids’ areas, and ground-floor homes feature private pools for a refreshing dip whenever you wish. Outdoor bike trails and jogging lanes encourage movement and connection with nature, making every day feel like a retreat. Sustainability is at the heart of The Capitalway, with smart water management and energy-efficient systems supporting a healthier way of living. The compound’s location places you close to the Green River zone, with parks and hospitals just minutes away—so wellness isn’t just a feature, it’s a way of life. Community events and seasonal gatherings foster a sense of belonging, while curated programs invite residents to explore new interests. Here, you’re not just living—you’re thriving in an environment that cares for your well-being. For a complete overview of The Capitalway’s amenities and lifestyle, explore The Capitalway.












