Property Description
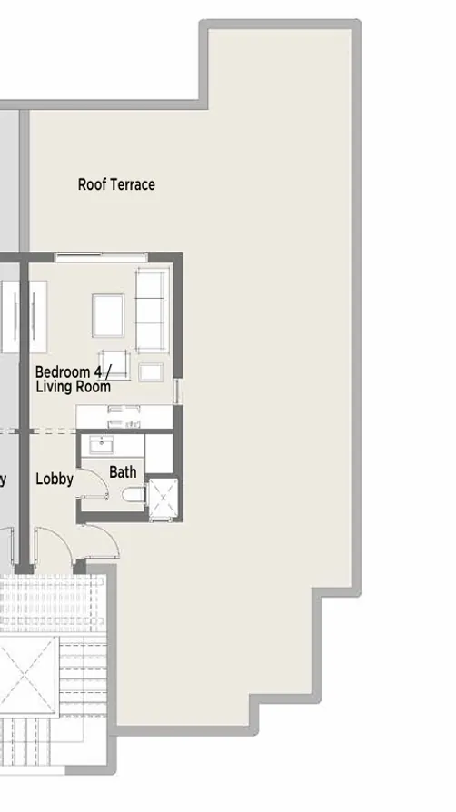
Step inside this fully finished four-bedroom chalet, where 196 SQM of thoughtfully designed space invite you to experience the best of Hacienda Blue by Palm Hills in Ras El Hekma. With five bathrooms, a dedicated nanny’s room with its own bath, and a spectacular roof terrace spanning 96 SQM, this residence is crafted for those who crave both comfort and sophistication. The open-plan living and dining area flows seamlessly onto a sun-drenched terrace, framing sweeping views that capture the essence of coastal living. Morning light pours through generous windows, illuminating premium finishes and subtle architectural details that set this chalet apart. Whether you’re savoring quiet family breakfasts or hosting lively gatherings under the stars, every corner is designed for memorable moments. The sense of arrival is immediate—step out onto the terrace and the world feels both expansive and intimately yours. Here, privacy and connection blend effortlessly, offering a retreat that’s as functional as it is beautiful. In this home, every day feels like a gentle escape, with the rhythm of the sea and the promise of luxury living at Hacienda Blue always within reach.
Compound Description
Luxury & Services
Hacienda Blue by Palm Hills is more than a coastal address—it’s a curated lifestyle where luxury and service define every experience. From the moment you enter, the sense of exclusivity is unmistakable. The community’s 24-feddan freshwater lagoon is the sparkling centerpiece, inviting residents to unwind with water sports or simply soak up the sun along its tranquil banks. Wellness is woven into daily life, with a dedicated center offering spa treatments, fitness classes, and serene spaces for relaxation. For those who love to socialize, fine dining venues and vibrant night entertainment set the stage for unforgettable evenings, while multi-purpose courts and children’s playgrounds ensure every family member finds their rhythm. Convenience is never compromised: a concierge team anticipates your needs, from housekeeping to event planning, and security is discreet yet ever-present. The retail promenade brings boutique shopping and gourmet markets just steps from your door, while seasonal events and curated social programs foster a true sense of belonging. With El Alamein Airport under 30 km away and direct access to major roads, weekend escapes and spontaneous getaways are always within easy reach. At Hacienda Blue, every detail—from lush landscaping to bespoke amenities—reflects a commitment to elevated living. Here, luxury isn’t just a promise; it’s the everyday reality. For a complete overview of Hacienda Blue’s amenities and lifestyle, explore Hacienda Blue.

















