Property Description
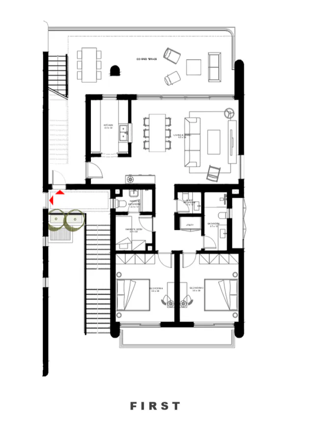
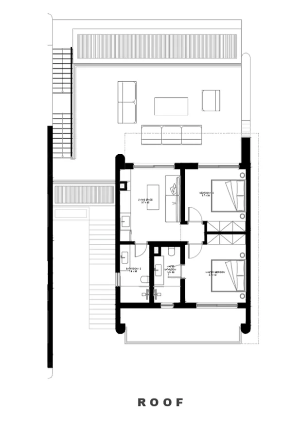
Step into this fully finished four-bedroom chalet, a spacious 193 SQM haven in Ramla, crafted by Marakez along the pristine shores of Ras El Hekma. From the moment you enter, the flow of the layout draws you through sunlit living spaces, each corner thoughtfully designed for comfort and connection. Four bathrooms ensure privacy and ease for every family member, while two generous terraces invite you to linger outdoors, soaking in breathtaking views that stretch across the landscape. The addition of a nanny’s room with its own bathroom brings a layer of convenience, making daily life smoother for busy families. Here, the details matter—from premium finishes to the gentle breeze that drifts in through wide windows. Ramla North Coast is more than a destination; it’s a place where morning routines feel effortless, laughter echoes in open rooms, and evenings on the terrace become cherished rituals. Whether you’re gathering friends for sunset drinks or savoring quiet moments with loved ones, this chalet is designed to elevate every experience. The sense of arrival is immediate, the promise of relaxation woven into every detail. For those seeking Ramla North Coast living with a touch of elegance and warmth, this home stands out as a true retreat.
Compound Description
Location & Connectivity
Ramla by Marakez is perfectly positioned in Ras El Hekma, placing you at the heart of Egypt’s most coveted Mediterranean stretch. Getting here is a breeze, and once you arrive, everything feels within reach. Almaza Bay is just a short 20-minute drive, while Caesar is even closer at 10 minutes—ideal for spontaneous outings or weekend adventures. Hacienda Red, with its vibrant social scene, is under 45 minutes away, making it easy to explore the North Coast’s best spots. The compound’s thoughtful masterplan ensures that daily essentials, leisure, and entertainment are never far from home. Village streets wind through the community, lined with boutique shops, cozy cafés, and inviting restaurants, so you can enjoy local flavors or international cuisine without venturing far. For families, proximity to reputable schools and clinics adds peace of mind, while upcoming infrastructure projects promise even smoother access in the future. Ramla’s location isn’t just about convenience—it’s about connection. The sparkling lagoon, shaded piazzas, and lush green spaces create a setting where neighbors become friends and every day brings new possibilities. Whether you’re commuting from Cairo or escaping for a long summer, the journey is simple and the destination rewarding. Here’s what makes Ramla’s location truly special:
- Quick access to key North Coast landmarks
- Seamless travel routes for easy arrivals and departures
- Essential services and retail within walking distance
- Future-ready infrastructure for lasting value Discover how Ramla North Coast blends effortless connectivity with the tranquility of Ras El Hekma, offering a lifestyle that’s both dynamic and deeply relaxing.
For a complete overview of Ramla’s amenities and lifestyle, explore Ramla North Coast.

















