Property Description
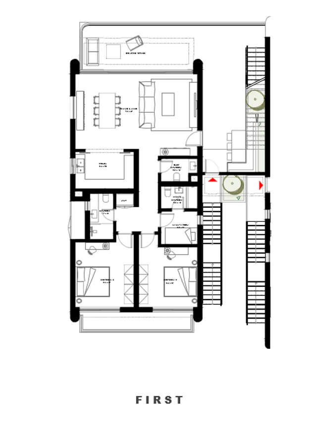
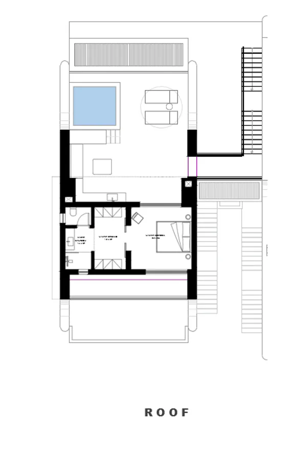
Step inside this fully finished three-bedroom chalet, a welcoming retreat spanning 168 SQM in Ramla, crafted by Marakez along the shimmering shores of Ras El Hekma. The moment you enter, sunlight pours through wide glass doors, illuminating the open-plan living space and drawing your gaze toward two generous terraces—each framing a breathtaking view that brings the outdoors in. With three bathrooms, a dedicated nanny’s room with its own bath, and thoughtful air conditioning throughout, comfort is woven into every corner. The flow of the home is effortless, inviting you to gather with loved ones or steal away for a quiet morning coffee as the North Coast breeze drifts in. Whether you’re hosting lively summer dinners or enjoying peaceful family rituals, the layout is designed for both celebration and retreat. Here, Ramla North Coast living means waking up to possibility, with every detail—from premium finishes to the seamless connection between indoor and outdoor spaces—reflecting a modern, coastal lifestyle. This chalet isn’t just a place to stay; it’s a canvas for your best moments, where the rhythm of the sea and the warmth of home blend beautifully.
Compound Description
Location & Connectivity
Ramla North Coast by Marakez is more than a destination—it’s a gateway to the best of Ras El Hekma, where every journey feels effortless and every arrival feels like coming home. Positioned along Egypt’s most coveted Mediterranean stretch, Ramla places you within easy reach of vibrant beach towns and essential amenities. Almaza Bay is just a short 20-minute drive, perfect for spontaneous outings or sunset strolls. Caesar is even closer, only 10 minutes away, while the lively energy of Hacienda Red is accessible in under 45 minutes. The compound’s thoughtful masterplan ensures smooth access to main roads, making weekend escapes or daily commutes refreshingly simple. Families appreciate proximity to top schools and clinics, with El Alamein International School and a modern medical center both within a comfortable radius. Ramla’s village street pulses with life—cafés, restaurants, and boutique shops line shaded walkways, offering both convenience and charm. The community’s design encourages easy movement, whether you’re cycling to the lagoon or walking to a favorite eatery. For those who value connectivity, Ramla delivers a seamless blend of privacy and accessibility, supported by reliable infrastructure and upcoming transport links that promise even greater ease in the future. Here, every day begins with the freedom to explore, connect, and belong. For a complete overview of Ramla’s amenities and lifestyle, explore Ramla North Coast.


















