Property Description
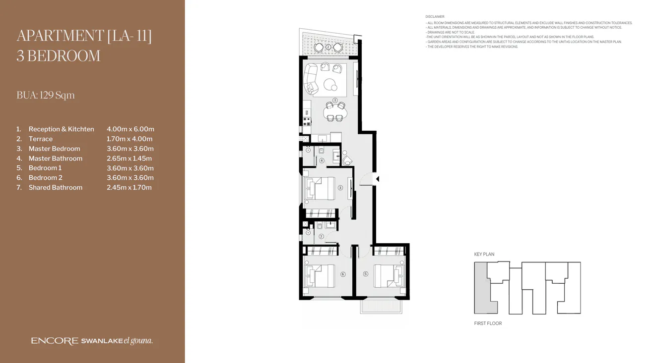
Step into this fully finished three-bedroom penthouse, a contemporary retreat spanning 129 SQM in Swan Lake Encore by Hassan Allam Properties, set in the vibrant heart of El Gouna. With two bathrooms and a spacious terrace, the home welcomes you with a sense of openness and light, drawing your gaze out to a breathtaking view that becomes part of your daily rhythm. The layout flows naturally from the airy living area to private bedrooms, each space thoughtfully designed for comfort and ease. Premium finishes—sleek kitchen cabinets, built-in wardrobes, and soft air conditioning—create an atmosphere where every detail feels intentional. The terrace is more than an outdoor space; it's an invitation to savor morning coffee as the sun rises over Swan Lake El Gouna, or unwind in the evening with the gentle breeze and shifting colors of the sky. Whether you're hosting friends or enjoying quiet family moments, the penthouse’s design blends privacy with a welcoming spirit, making it a true haven for those who appreciate both luxury and connection. Here, Swan Lake Encore’s signature style meets the promise of elevated living, where every day feels inspired by the beauty of its surroundings.
Compound Description
Innovation & Design
Swan Lake Encore stands out in El Gouna for its bold approach to innovation and design, redefining what it means to live by the water. The masterplan by Hassan Allam Properties is a testament to thoughtful architecture, where Greek-inspired facades and expansive windows invite natural light and the lagoon’s shimmering reflections into every home. The compound’s footprint covers only 12% of the land, leaving generous green spaces and breathing room for residents—a philosophy that puts wellness and sustainability at the forefront. Smart-home features are seamlessly integrated, from energy-efficient cooling systems to intelligent lighting controls, making daily life both effortless and eco-conscious. Swan Lake El Gouna’s lagoon is more than a scenic centerpiece; it’s a living environment, with private beaches and lush communal gardens designed for relaxation and connection. The community’s design encourages both privacy and social interaction, with standalone entrances and rooftop terraces that offer panoramic views. Residents enjoy proximity to El Gouna’s top destinations—Golf Club, Marina, and vibrant dining spots—while benefiting from curated programming such as seasonal art installations and wellness workshops. Swan Lake Encore is not just a place to live; it’s a canvas for modern lifestyles, where architecture, nature, and technology blend to create a truly elevated experience. For a complete overview of Swan Lake El Gouna’s amenities and lifestyle, explore Swan Lake Encore.




















