Property Description
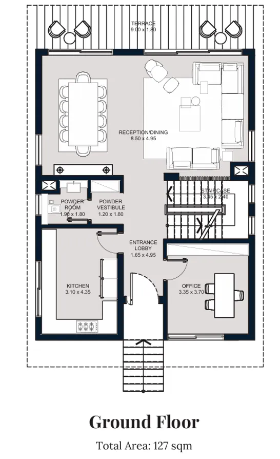
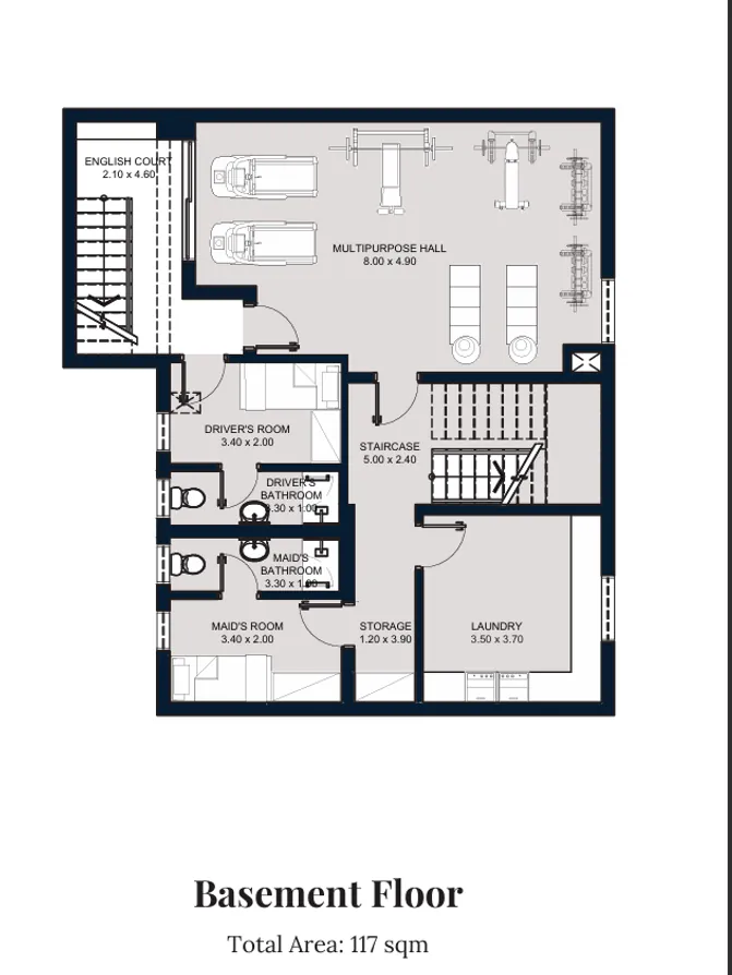
Step inside this inviting three-bedroom villa, thoughtfully designed across 388 SQM in Swan Lake Residences by Hassan Allam Properties, set in the heart of New Cairo. From the moment you enter, natural light pours through wide windows, illuminating spacious living areas and three elegant bathrooms. The flow of the home feels effortless—each room opening onto two generous terraces that frame breathtaking views and invite you to linger outdoors. Imagine mornings spent in your private garden, coffee in hand, as the city wakes beyond your tranquil retreat. Thoughtful touches abound: a dedicated nanny’s room and a separate driver’s room, each with its own bathroom, add comfort and convenience for busy family life. The villa’s layout encourages togetherness, yet offers quiet corners for reflection. Premium finishes and subtle architectural details elevate every moment, whether you’re hosting friends or savoring quiet evenings. Here, the rhythm of daily life is shaped by sunlight, fresh air, and the gentle embrace of nature—making this residence not just a place to live, but a space to truly belong.
Compound Description
Location & Connectivity
Swan Lake Residences stands as a beacon of connectivity in New Cairo, placing you at the crossroads of the city’s most dynamic destinations. The compound’s location is more than convenient—it’s strategic, offering seamless access to major roads like Cairo-Suez and the Ring Road. Whether you’re heading to the New Administrative Capital, Ain Sokhna’s beaches, or the bustling centers of Madinaty and El Shorouk City, you’ll find yourself just minutes away. Families appreciate being approximately 1 km from Al Rehab and Mirage City, while top-tier education is close at hand with the American University in Cairo only 9 km away. International travel is effortless, with Cairo International Airport reachable in under 15 minutes. Shopping and leisure are woven into daily life, with Cairo Festival City and Heliopolis nearby for weekend outings or quick errands. Swan Lake Residences isn’t just about proximity—it’s about living in sync with the pulse of New Cairo, where every journey feels easy and every return feels like coming home. The masterplan ensures that every neighborhood is connected by landscaped walkways and secure entrances, so you move freely and safely throughout the community. Here, your home is at the center of it all—where work, school, and play are never far, and every day begins with possibility. For a complete overview of Swan Lake Residences’ amenities and lifestyle, explore Swan Lake Residences.















