Property Description
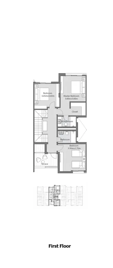
Step into this four-bedroom townhouse spanning 201 SQM in SODIC East, New Heliopolis, and discover a residence crafted for family living. With five bathrooms, including a nanny’s room with its own bath, the home blends functionality with warmth. Three terraces extend your living spaces outdoors, while a private garden sets the scene for peaceful mornings or lively weekend gatherings. The design emphasizes natural light, fluid indoor-outdoor flow, and spacious proportions, creating a daily rhythm that feels effortless. Whether you’re entertaining friends, enjoying quiet family dinners, or watching your children play in the garden, this townhouse offers more than a roof—it offers a way of life in one of East Cairo’s most promising destinations.
Compound Description
Community & Lifestyle
SODIC East in New Heliopolis is more than just a compound—it is a complete community designed around growth, well-being, and connection. Spread across 655 acres, the master plan by Sasaki integrates generous green spaces, the iconic “Green Spine” corridor, and family-oriented zones that inspire daily activity. Residents enjoy seamless connectivity with proximity to the LRT station (10 minutes), Monorail (30 minutes), and Cairo International Airport (35 minutes), ensuring easy access to the city and beyond. Everyday life is elevated through diverse facilities: Club S, a 40-acre wellness hub with sports academies and gyms; the Finnish British School, the first of its kind in MENA; a community mall with dining and retail; family clinics for healthcare; and social nodes including a town hall for events and gatherings. Designed with people at its heart, SODIC East encourages a lifestyle where neighbors become friends and families thrive in harmony.
For a complete overview of SODIC’s amenities and lifestyle, click here.

















