Property Description
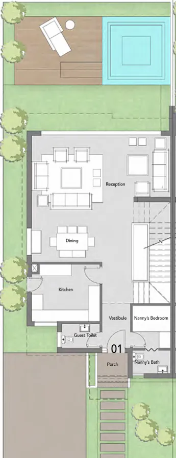
Step into this inviting three-bedroom townhouse, where 218 SQM of thoughtfully designed space welcomes you home to Badya by Palm Hills in the heart of 6th of October. From the moment you cross the threshold, the sense of openness and flow is unmistakable—sunlight pours through generous windows, illuminating every corner and drawing your gaze toward the terrace with its sweeping, uninterrupted views. Four bathrooms ensure comfort and privacy for every member of the family, while a dedicated nanny’s room with its own bath adds a layer of convenience for busy households. The real showstopper? A 69 SQM roof terrace, perfect for quiet mornings with coffee or lively evenings under the stars, and a private garden that feels like an extension of your living room. Every detail, from the seamless indoor-outdoor connection to the subtle architectural touches, is crafted to elevate daily rituals—imagine hosting friends as laughter drifts from the terrace, or unwinding in your own green retreat after a long day. This is badya living at its most inspiring, blending comfort, function, and a touch of everyday luxury in a home that truly stands apart.
Compound Description
Innovation & Design
Badya isn’t just another address—it’s a living canvas for innovation and design, where Palm Hills has reimagined what a modern city can be in 6th of October. The masterplan is a testament to forward-thinking urbanism, with six distinct residential districts radiating from a vibrant central hub. Here, architecture isn’t just about aesthetics; it’s about creating connections—walkable neighborhoods, green corridors, and intuitive layouts that make every journey feel effortless. Sustainability is woven into the fabric of daily life, from energy-efficient building materials to smart water management systems and solar-powered amenities. The city’s digital backbone supports everything from high-speed connectivity to app-based community services, making life smoother and more responsive. Artistic touches—sculptures, murals, and curated public spaces—dot the landscape, sparking creativity and conversation. Education and wellness are seamlessly integrated, with schools, a university, and a 24-hour medical center all within easy reach. Even the parks are designed with intention: community gardens, linear greenways, and sports parks invite residents to gather, play, and recharge. Badya’s commitment to innovation extends to its events calendar, with pop-up markets, art festivals, and tech workshops that bring neighbors together and keep the spirit of discovery alive. For those who crave a lifestyle that’s both inspiring and practical, Badya sets a new benchmark for what a residential community can achieve.
For a complete overview of Badya’s amenities and lifestyle, explore Badya.


















