Property Description
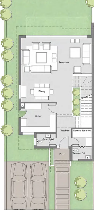
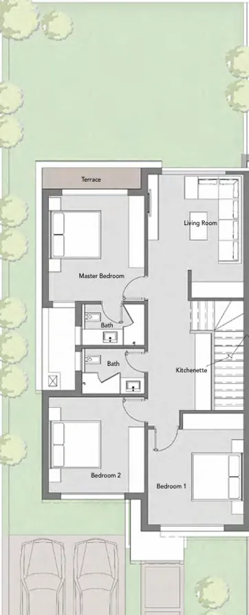
Step into this inviting three-bedroom townhouse, thoughtfully designed across 194 SQM in Badya by Palm Hills, nestled in the heart of 6th of October. With three bathrooms and a dedicated nanny’s room, this home is crafted for families who value comfort and flexibility. The moment you enter, natural light pours through generous windows, illuminating the open-plan living and dining area—a space that feels both expansive and intimate. The terrace draws you outside, where a private garden unfolds, perfect for morning coffee rituals or evening gatherings under the sky. Every detail, from the seamless indoor-outdoor flow to the tranquil garden views, is designed to make daily life feel effortless. The layout encourages connection, yet offers quiet corners for retreat. Whether you’re hosting friends or enjoying a peaceful night in, this townhouse adapts to every mood. Here, in Badya, you’re not just buying a property; you’re stepping into a lifestyle where every day feels a little brighter, a little more yours. Experience the unique blend of privacy, space, and connection that defines this home—where the promise of badya living comes alive.
Compound Description
Location & Connectivity
Badya’s location is a masterstroke for those who crave both convenience and possibility. Set at the crossroads of 6th of October, Badya by Palm Hills places you within easy reach of Cairo’s most vital destinations. Five major highways—like the 26th of July Corridor and The Ring Road—fan out from your doorstep, turning commutes into smooth journeys. In under half an hour, you can be at the Mall of Egypt, the Grand Egyptian Museum, or the iconic pyramids. Sphinx International Airport is just over half an hour away, making travel plans refreshingly simple. For families, top schools such as the nearby British International School and reputable medical centers are close at hand, while the city’s vibrant business districts and leisure hubs are never out of reach. The masterplan itself is designed to reduce reliance on cars, with walkable neighborhoods and green corridors that invite you to explore on foot or by bike. Within Badya, you’ll find a pulse of activity—cafés, shops, and parks—woven seamlessly into the landscape. Whether you’re heading to a morning meeting, dropping the kids at school, or planning a weekend adventure, Badya’s connectivity means you’re always just minutes from where you want to be. This is more than a place to live; it’s a launchpad for your ambitions and a haven for your family’s everyday moments. For a complete overview of Badya’s amenities and lifestyle, explore Badya.


















