Property Description
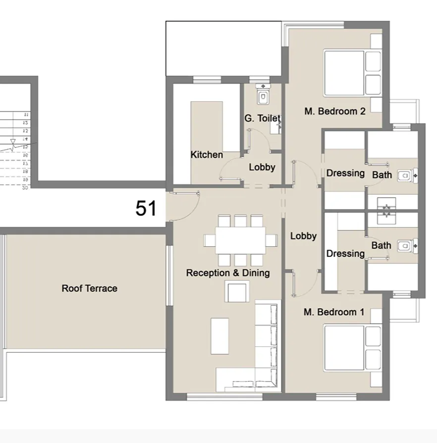
Step into this inviting two-bedroom penthouse, thoughtfully designed across 114 SQM, with three bathrooms and a private 22 SQM roof terrace that opens up to sweeping, uninterrupted views. Nestled within Badya by Palm Hills in 6th of October, this home captures the essence of badya living—where every detail is crafted for comfort and well-being. The open-plan living area is bathed in natural light, flowing seamlessly onto the terrace, creating a gentle transition between indoors and out. Imagine mornings spent with coffee in hand, sunlight streaming through generous windows, or evenings under the stars with friends and family. Premium finishes throughout lend a sense of understated luxury, while the clever layout ensures privacy for each bedroom. The penthouse’s elevated position means you’re always greeted by fresh air and panoramic vistas, making daily rituals feel special. Whether you’re seeking a peaceful retreat or a vibrant space to entertain, this residence offers a harmonious blend of tranquility and connection—an ideal setting for those who value both style and substance in their everyday environment.
Compound Description
Wellness & Environment
Badya isn’t just a place to live—it’s a living, breathing environment designed with your well-being at its heart. The masterplan by Palm Hills weaves together lush green corridors, pedestrian-friendly walkways, and a network of parks that invite you to slow down and reconnect with nature. Here, every corner feels intentional: from the aquaponics farm that brings fresh, organic produce to your table, to the three distinct park types—Community, Linear, and Sports Parks—each offering a unique space for relaxation, play, or fitness. The air feels fresher, the mornings quieter, and the evenings alive with the gentle hum of community life. Sustainability is more than a buzzword at Badya; it’s a guiding principle. Water management systems, energy-efficient lighting, and eco-friendly landscaping help preserve the environment while enhancing your daily comfort. Residents enjoy access to a 24-hour medical center, ensuring peace of mind, and the Palm Hills Sports Club—spanning 100 acres—caters to every fitness passion, from horse riding to swimming. Educational partnerships with UTMB and Taaleem mean families have quality learning options right at their doorstep. For those who crave a holistic lifestyle, Badya’s blend of wellness, green living, and thoughtful amenities creates a nurturing backdrop for every stage of life. Discover the full Badya experience and community features here.


















