Property Description
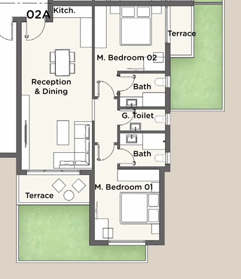
Step into this fully finished two-bedroom apartment, thoughtfully designed across 112 SQM in Badya by Palm Hills, right in the heart of 6th of October. With three bathrooms and a layout that flows seamlessly from the welcoming entryway to the sunlit living area, this home feels open yet intimate. The moment you walk in, natural light pours through wide glass doors, drawing your gaze out to not just one, but two private terraces—each offering a different angle on the lush, landscaped surroundings. The 25 SQM private garden is more than an outdoor space; it's an invitation to morning coffees, quiet evenings, and laughter with friends under the open sky. Every finish, from the sleek flooring to the elegant fixtures, reflects a commitment to comfort and style. Here, the rhythm of daily life is elevated by thoughtful touches—ample storage, a kitchen that opens to the living area for easy entertaining, and bedrooms tucked away for privacy. Whether you’re hosting a lively gathering or savoring a peaceful retreat, this apartment in Badya brings together the best of modern living and the warmth of home. Experience the unique blend of tranquility and vibrancy that defines badya, with Badya’s signature sense of place woven into every detail.
Compound Description
Luxury & Services
Badya by Palm Hills isn’t just a residential address—it’s a destination where luxury and service are woven into the fabric of everyday life. From the moment you enter the gates, a sense of arrival greets you: tree-lined boulevards, attentive security, and a concierge culture that anticipates your needs. The community’s amenities are curated for those who appreciate the finer things—think a sprawling 100-acre sports club, exclusive spa and wellness centers, and a selection of gourmet restaurants and boutique cafes that make every meal an occasion. Residents enjoy access to four top-tier schools and a university within the compound, ensuring educational excellence is always close at hand. Healthcare is never an afterthought, with a 24-hour medical center staffed by experienced professionals. For those who crave convenience, Badya’s retail promenade features designer shops, artisanal bakeries, and everyday essentials, all just a stroll away. The community’s event calendar is alive with seasonal festivals, art exhibitions, and family-friendly gatherings, creating a vibrant social tapestry. Smart-home features and sustainable infrastructure add a layer of innovation, while lush parks and walking trails offer a daily escape into nature. Here, luxury isn’t about excess—it’s about thoughtful details, seamless service, and a lifestyle that feels both elevated and effortless. For a complete overview of Badya’s amenities and lifestyle, explore Badya.


















