وصف العقار
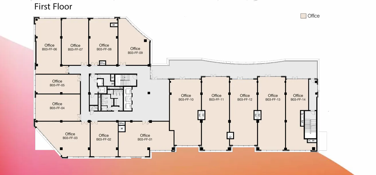
مكتب إداري بمساحة 190 متر مربع داخل بالميت أكتوبر من تطوير بالم هيلز للتطوير العقاري في قلب مدينة 6 أكتوبر. هذا المكتب مصمم ليخدم يوم العمل الحقيقي، بتقسيم عملي يسمح بالفصل الطبيعي بين مساحات التركيز اليومي ومنطقة استقبال العملاء. الإضاءة الطبيعية تدخل بعمق إلى المكتب، ما يعطي إحساسًا بالاتساع والراحة، ويجعل المساحة مناسبة لمكاتب مفتوحة مع ركن إداري واجتماعات دون ضغط أو ازدحام. التجربة اليومية هنا سلسة من لحظة الوصول، مع إحساس بالهدوء والتنظيم يساعدك على العمل والاستقبال بثقة داخل بيئة مهنية متوازنة في مدينة 6 أكتوبر.
وصف الكمباوند
الموقع وسهولة الوصول
بالميت أكتوبر ليس مشروعًا تجاريًا تقليديًا، بل داون تاون متكامل مقام على هضبة غرب القاهرة. التخطيط يعتمد على محور أخضر رئيسي يربط بين عدة ساحات، لكل منها طابعها واستخدامها، ما يجعل الحركة داخل المشروع طبيعية وغير مجهدة. المكاتب متصلة مباشرة بالمطاعم والكافيهات والخدمات اليومية، فيتحول الانتقال من اجتماع إلى استراحة أو موعد عمل إلى تجربة سلسة داخل نفس المكان. موقعه داخل مدينة 6 أكتوبر يمنح سهولة وصول من أكثر من اتجاه، ومع الارتفاع تشعر بالمساحة والهواء المفتوح حتى في أكثر الأيام ازدحامًا. التجزئة مختارة بعناية، والطعام عنصر اجتماعي أساسي، والأنشطة الثقافية والصحية جزء من الإيقاع اليومي للمكان. للتعرف على تفاصيل المرافق وتجربة الداون تاون بالكامل، يمكنك استكشاف بالميت أكتوبر من هنا.









