وصف العقار
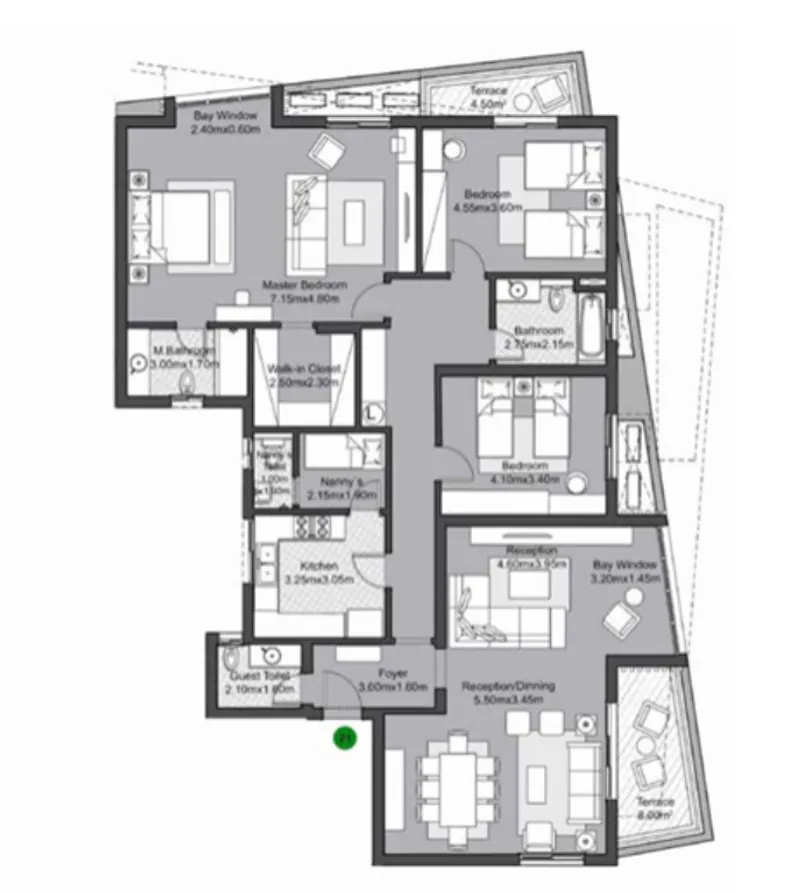
ادخل إلى هذه الشقة الخدمية الفاخرة المكونة من أربع غرف نوم بمساحة 235 متر مربع في فيليت، من تطوير سوديك وفي قلب القاهرة الجديدة. منذ اللحظة الأولى، يلفت انتباهك تدفق الضوء الطبيعي عبر المساحات المفتوحة، ويبرز روعة التصميم العصري والتشطيبات الفاخرة. تضم الشقة أربعة حمامات أنيقة، منها غرفة مربية بحمام خاص لتلبية احتياجات العائلة. المطبخ مجهز بخزائن عصرية، ووحدات الملابس تضيف لمسة تنظيمية عملية. التراسان يطلان على مناظر خلابة، لتستمتع بلحظات صباحية هادئة أو تجمعات مسائية مميزة. موقع الشقة داخل سوديك فيليت يمنحك إحساسًا بالخصوصية والراحة يوميًا، حيث تلتقي الأناقة الداخلية مع هدوء المساحات الخارجية. إذا كنت تبحث عن منزل يجمع بين احتياجات الأسرة والطابع العصري، فهذه الوحدة في فيليت جاهزة لاستقبالك.
وصف الكمباوند
المجتمع وأسلوب الحياة
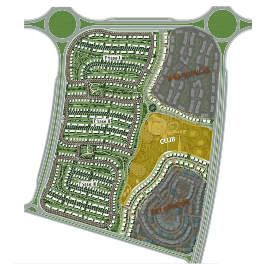
فيليت من سوديك ليس مجرد مجموعة من المنازل، بل مجتمع نابض بالحياة حيث تتحول الجيرة إلى صداقات وتصبح كل يوم فرصة جديدة للإلهام. التصميم يركز على تعزيز الروابط، مع حدائق خضراء ومسارات متعرجة تشجع على التنزه واللقاءات العائلية. العائلات تجتمع في مناطق لعب مظللة، ومحبو الرياضة يستمتعون بممرات المشي والدراجات المنتشرة في الكمباوند. الحياة الاجتماعية تنمو في نادي S، حيث يمكن للجميع المشاركة في حصص اليوغا أو الكروس فيت أو الاسترخاء في الصالات الاجتماعية بعد مباراة تنس. فعاليات موسمية وبرامج مجتمعية تجمع السكان، من ليالي السينما الخارجية إلى أسواق المزارعين وورش العمل الفنية. الراحة جزء من الحياة اليومية، مع المدارس الدولية، المولات، والمطاعم بالقرب منك، وطريق التسعين على بعد أقل من خمس دقائق. المرافق الصحية والحضانات قريبة، ما يجعل فيليت خيارًا مطمئنًا للعائلات. البيئة الخضراء والبحيرات تضيف لمسة انتعاش، والمبادرات المستدامة مثل الري الموفر للطاقة والإضاءة الذكية تعكس التزامًا بالعيش المسؤول. سواء كنت تبدأ حياة جديدة أو توسع عائلتك، أجواء فيليت الدافئة وخدماته المدروسة تمنحك تجربة سكنية راقية وشخصية.
للتعرف أكثر على أجواء فيليت وخدماته، يمكنك زيارة صفحة سوديك فيليت.















