وصف العقار
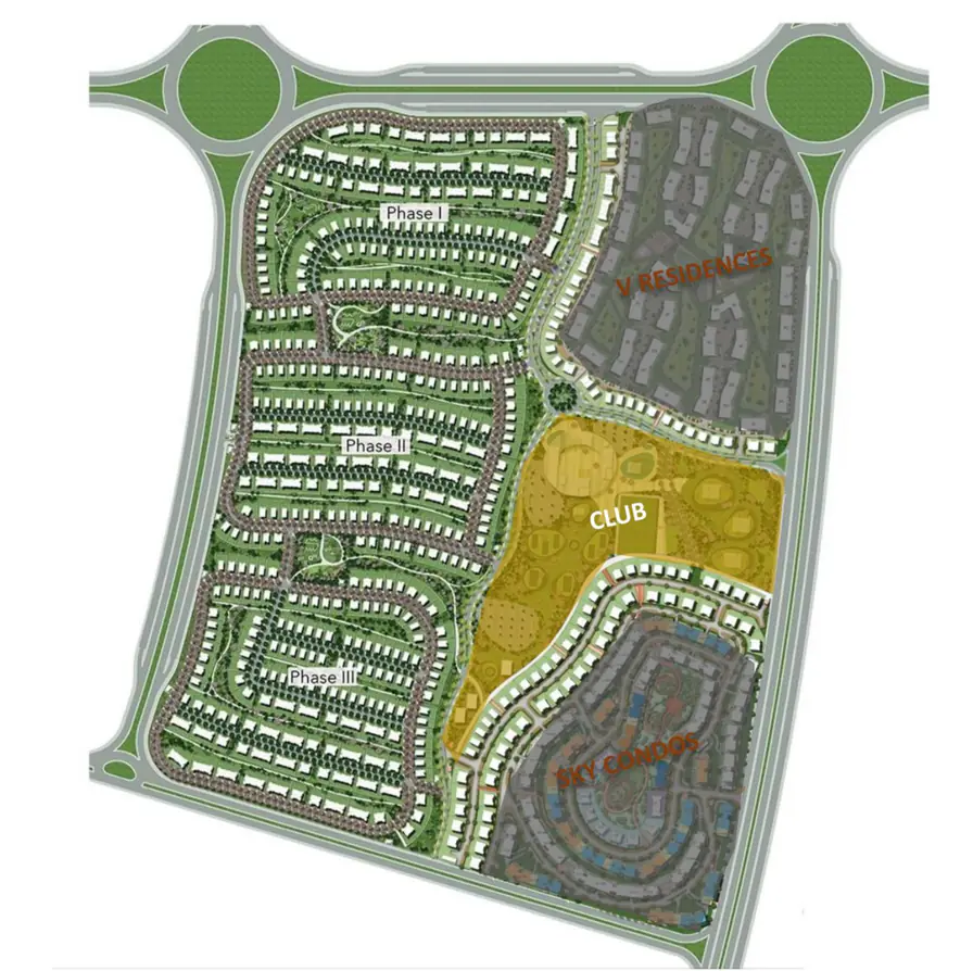
ادخل إلى هذه الشقة الخدمية الفاخرة المكونة من أربع غرف نوم بمساحة 219 متر مربع، لتجد منزلاً مصمماً بعناية لكل تفاصيل الحياة. تقع في V ريزيدنس ضمن مشروع سوديك في قلب القاهرة الجديدة، حيث يرحب بك التصميم الداخلي بانسيابية وإضاءة طبيعية. أربعة حمامات، منها جناح خاص للمربية، تجعل الحياة اليومية أكثر راحة للعائلة والضيوف. التراسان الواسعان يفتحان لك إطلالات خلابة على الحدائق، فتشعر بأن الطبيعة جزء من منزلك. النوافذ الكبيرة تغمر المكان بالضوء، والتشطيبات الفاخرة مثل الرخام وخزائن المطبخ تضيف لمسة رفاهية لكل يوم. التكييف المركزي ووحدات الملابس تجعل كل لحظة في المنزل أكثر راحة وأناقة. من اللحظة الأولى، ستشعر أن هذا المنزل يجمع بين حيوية فيليت سوديك وهدوء القاهرة الجديدة، ليمنحك تجربة سكنية راقية وشخصية.
وصف الكمباوند
الابتكار والتصميم
مشروع فيليت من سوديك ليس مجرد مجموعة من المنازل، بل هو نموذج للتصميم العصري والتخطيط المتطور. تظهر فلسفة الهندسة المعمارية منذ اللحظة الأولى: واجهات غير تقليدية، مساحات زجاجية واسعة، ونوافذ علوية تمنحك تواصلاً بصرياً مع الطبيعة المحيطة. كل وحدة سكنية مصممة لتعزيز الإضاءة الطبيعية وتوفير إطلالات بانورامية، ليصبح الخارج جزءاً من تفاصيل حياتك اليومية. التخطيط يتجاوز الجمال، حيث تم دمج أنظمة المنزل الذكي وكفاءة الطاقة لتوفير الراحة والاستدامة. يتمتع السكان بإدارة مياه متقدمة، وإضاءة تعمل بالطاقة الشمسية في المناطق المشتركة، واتصال سلس في جميع أنحاء الكمباوند. التصميم يشجع على الحركة والتفاعل، مع ممرات خضراء تربط المنازل بالحدائق والبحيرات ومسارات الدراجات. الابتكار يمتد إلى المساحات المجتمعية؛ نادي S يقدم برامج رياضية متطورة في منشآت ملهمة للجسم والعقل. العائلات تستفيد من قرب المدارس الدولية مثل المدرسة البريطانية، بينما التسوق والمطاعم في إيست تاون مول على بعد دقائق. الرعاية الصحية متوفرة عبر عيادات قريبة. فلسفة التصميم هنا تهدف إلى خلق بيئة سكنية تتكيف مع احتياجاتك وتدعم طموحاتك وتمنحك لحظات يومية أكثر جودة. لمزيد من التفاصيل حول مرافق وخدمات فيليت، تعرّف على سوديك فيليت.















