وصف العقار
اكتشف روعة هذه الشقة الخدمية كاملة التشطيب المكونة من أربع غرف نوم في سوديك فيليت، من تطوير سوديك في قلب القاهرة الجديدة. بمساحة 218 متر مربع، تستقبلك بنوافذ واسعة تملأ المكان بالضوء الطبيعي وتمنحك إحساسًا بالاتساع. التصميم الداخلي يربط بين غرفة المعيشة والتراس المطل على حديقة خاصة بمساحة 46 متر مربع، لتستمتع بلحظات هادئة أو تجمعات عائلية. أربعة حمامات، منها غرفة مربية بحمام خاص، توفر الخصوصية والراحة للجميع. لمسات مثل التكييف وخزائن المطبخ ووحدات الملابس تضيف رفاهية عملية لكل يوم. موقع الشقة في V ريزيدنس يمنحك هدوءًا وسط مجتمع نابض بالحياة، لتعيش تفاصيل يومية تجمع بين الراحة والأناقة.
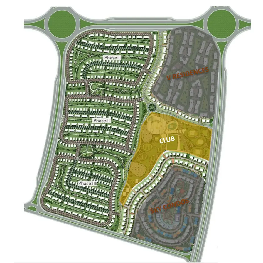
وصف الكمباوند
الصحة والبيئة
سوديك فيليت ليس مجرد مجمع سكني، بل بيئة متكاملة تهتم بالصحة والطبيعة. المخطط الرئيسي من سوديك يضع المساحات الخضراء في قلب المجتمع، مع حدائق وممرات للمشي والدراجات بين المنازل. تبدأ يومك بأشعة الشمس التي تدخل منزلك، وتستمتع ببحيرات للسباحة على بعد دقائق، ومساحات هادئة للتأمل والاسترخاء. أنظمة إدارة المياه والإضاءة الموفرة للطاقة تعكس التزام الكمباوند بالاستدامة وصحة السكان. موقع سوديك فيليت في القاهرة الجديدة يضعك بالقرب من مدارس مثل كايرو إنجلش سكول ومراكز طبية مثل مستشفى تبارك، بينما يوفر المجتمع فعاليات موسمية وورش عمل صحية تعزز الروابط بين السكان. نادي S يقدم برامج يوغا وكروس فيت ومساحات للتأمل، لتجد التوازن بين النشاط والراحة. هنا، كل تفصيلة تهدف لجعل حياتك أكثر صحة وهدوءًا، حيث الطبيعة والرفاهية جزء من يومك.
للتعرف على تفاصيل الحياة في سوديك فيليت وخدماته المتكاملة، زر صفحة سوديك فيليت.















