وصف العقار
ادخل إلى هذه الشقة الخدمية الفاخرة المكونة من أربع غرف نوم، حيث ينعكس الاهتمام بالتفاصيل في كل زاوية لتمنحك إحساسًا بالراحة والعملية. بمساحة 218 متر مربع، تستقبلك المساحات الواسعة بإضاءة طبيعية تدخل عبر النوافذ الكبيرة، وتوجهك نحو التراس الذي يطل على منظر خلاب. تقع الشقة في V ريزيدنس فيليت، من تطوير سوديك في قلب القاهرة الجديدة، وتوفر أربعة حمامات منها غرفة مربية بحمام خاص. المطبخ مجهز بخزائن أنيقة، ووحدات الملابس تضيف لمسة رفاهية لروتينك اليومي. التصميم الداخلي يجمع بين الخصوصية والتواصل، ليمنحك أجواء مثالية للعائلة أو لحظات الاسترخاء. التراس يصبح مساحتك الخاصة للاستمتاع بالصباحات الهادئة أو أمسيات العائلة، لتعيش تجربة سكنية تجمع بين الأناقة والدفء في سوديك فيليت.
وصف الكمباوند
المجتمع وأسلوب الحياة
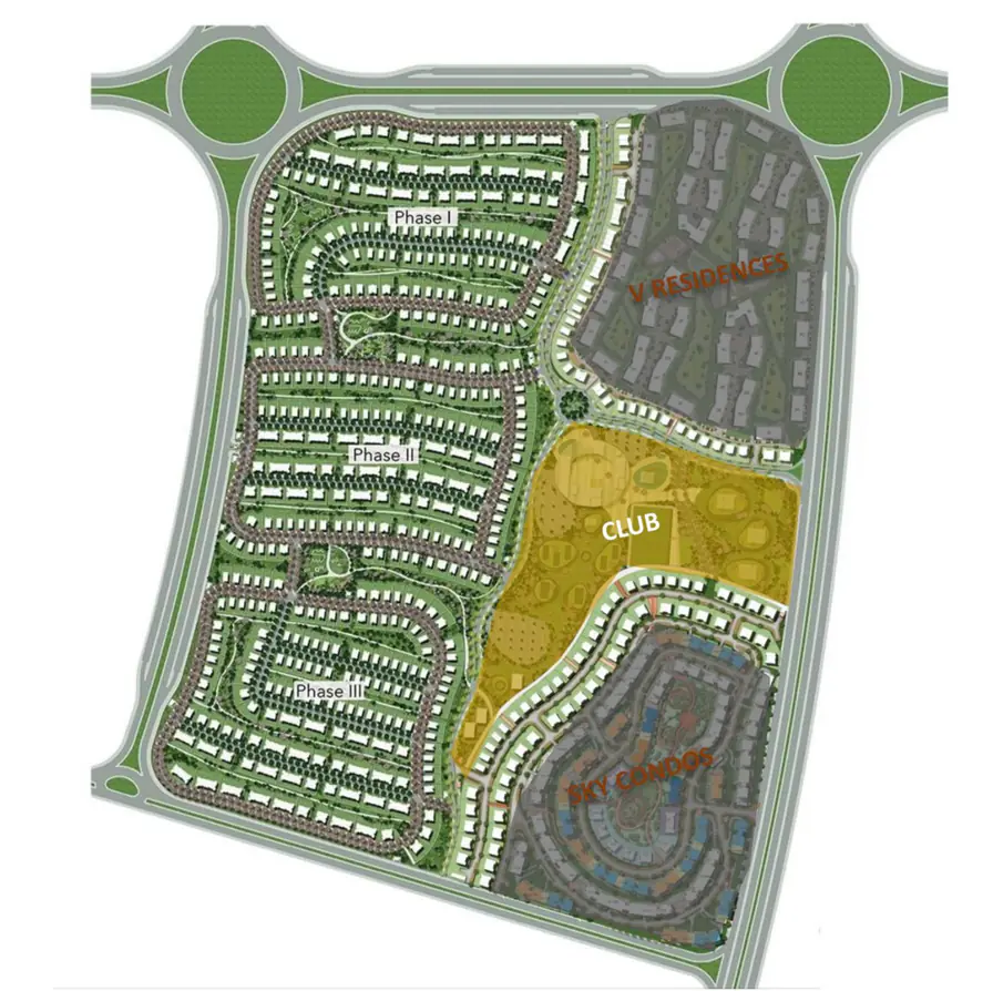
فيليت من سوديك ليس مجرد كمباوند سكني، بل مجتمع نابض بالحياة حيث تتحول الجيرة إلى صداقات وتصبح كل يوم فرصة جديدة للإلهام. هنا تتوزع الحدائق والمساحات الخضراء والممرات المظللة لتجمع العائلات في نزهات نهاية الأسبوع، بينما يستمتع الأطفال بمناطق اللعب والبحيرات القابلة للسباحة على بعد دقائق من المنزل. ينبض الكمباوند بالحركة، من رياضة الصباح على المسارات المزروعة إلى جولات المساء التي تنتهي في مقاهي هادئة. النوادي الاجتماعية والفعاليات الموسمية تجمع السكان وتخلق شعورًا بالانتماء يصعب إيجاده في مكان آخر. ستجد في فيليت مجموعة متنوعة من الخدمات: نادي S يقدم برامج رياضية متطورة، ملاعب تنس وصالات اجتماعية تدعم الصحة والتواصل. المدارس الدولية، المولات، والمطاعم كلها قريبة، لتجعل حياتك اليومية أكثر سهولة وثراءً. التصميم يشجع على التفاعل، مع أرصفة واسعة وساحات مفتوحة وزوايا هادئة للتأمل. فيليت هو المكان الذي تنمو فيه العلاقات وتحتفل فيه باللحظات المميزة وتزدهر فيه عائلتك. اكتشف المزيد عن مجتمع وخدمات فيليت سوديك من هنا.















