وصف العقار
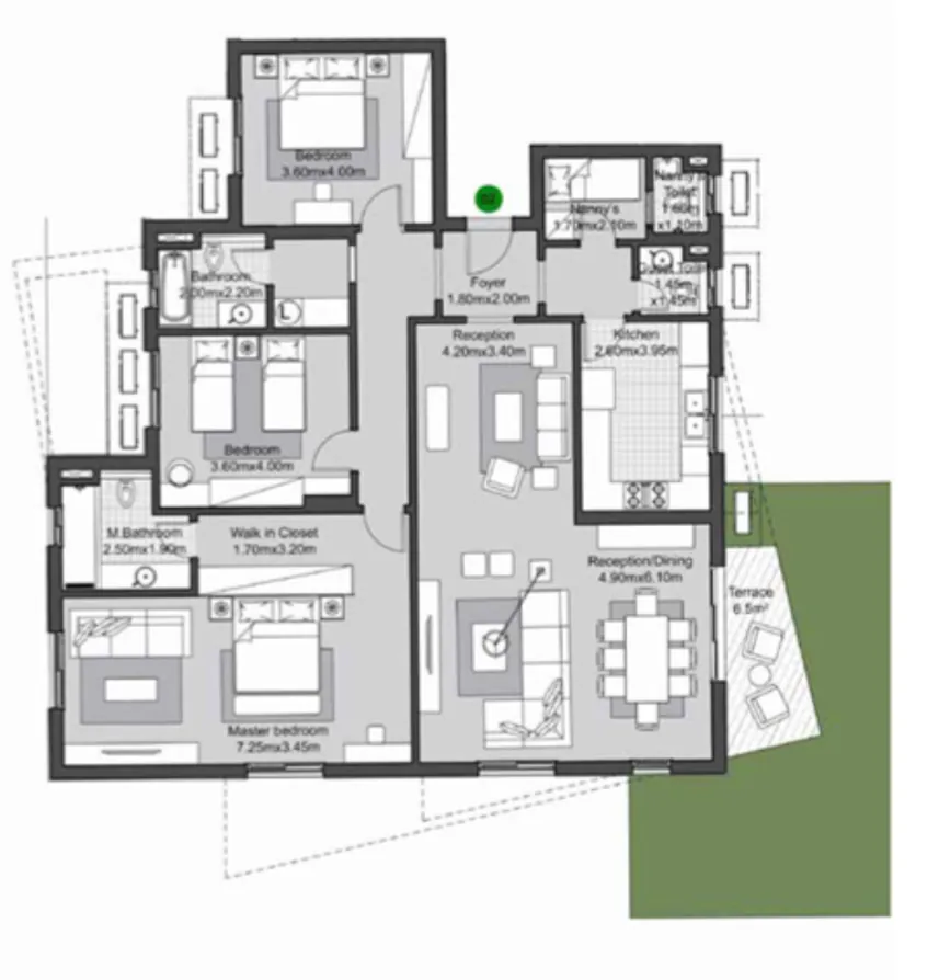
شقة خدمية جاهزة للسكن بأربع غرف نوم، بمساحة 210 متر مربع، تقدم لك تجربة معيشية متكاملة في سوديك فيليت عبر سوديك في قلب القاهرة الجديدة. التصميم الداخلي يتيح تدفق الضوء الطبيعي عبر النوافذ الكبيرة، ويوفر توزيعًا ذكيًا للمساحات بين غرف النوم الأربعة وأربعة حمامات، منها غرفة مربية بحمام خاص. المطبخ مجهز بخزائن أنيقة، ووحدات الملابس تضيف لمسة فاخرة لكل غرفة. التراس يطل على حديقة خاصة بمساحة 73 متر مربع، لتستمتع بلحظات صباحية هادئة أو تجمعات عائلية في الهواء الطلق. التفاصيل المعمارية تجمع بين الحداثة والدفء، لتشعر بالترحاب منذ لحظة دخولك. هذه الشقة تمنحك أسلوب حياة عصري في سوديك فيليت، حيث كل يوم يبدأ بإحساس جديد بالراحة والتميز.
وصف الكمباوند
الابتكار والتصميم
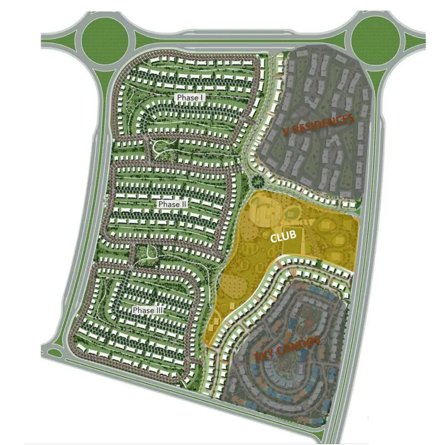
فيليت من سوديك يجسد مفهوم الحياة العصرية في القاهرة الجديدة، حيث يلتقي الإبداع المعماري مع الراحة اليومية. التخطيط العام للمشروع يتميز بممرات خضراء وتصاميم حديثة، مع واجهات غير متماثلة ونوافذ زجاجية واسعة تدمج المساحات الداخلية بالخارجية. كل مبنى مصمم ليمنحك أقصى استفادة من الضوء الطبيعي والخصوصية، مع إطلالات بانورامية على الحدائق وأفق المدينة. فلسفة التصميم تركز على المرونة، حيث تتنوع الوحدات بين شقق ودوبلكس بمساحات من 120 إلى 350 متر مربع لتناسب جميع الاحتياجات. الاستدامة جزء أساسي من المشروع، من أنظمة الإضاءة الموفرة للطاقة إلى حلول إدارة المياه التي تعزز المساحات الخضراء. السكان يستفيدون من تقنيات المنزل الذكي للتحكم في الأمان والمناخ بسهولة. المرافق مصممة للإلهام والاسترخاء؛ نادي S يقدم برامج رياضية مبتكرة، بحيرات للسباحة، ومسارات خضراء للمشي والدراجات. المجتمع ينبض بالحياة من خلال فعاليات موسمية وتركيبات فنية وصالات اجتماعية تعزز التواصل. الوصول سهل، فطريق التسعين أقل من خمس دقائق والمدارس الدولية والمراكز الطبية والتجارية قريبة جدًا. فيليت ليس مجرد مكان للسكن، بل لوحة حياة تجمع التصميم والرفاهية في تجربة متكاملة. لمزيد من التفاصيل عن أسلوب الحياة والمرافق في فيليت، تعرّف على سوديك فيليت.















