وصف العقار
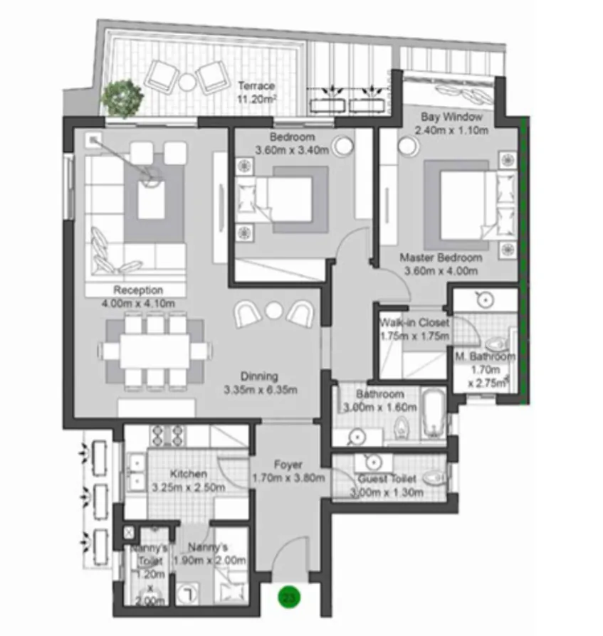
اكتشف روعة هذه الشقة الخدمية كاملة التشطيب بثلاث غرف نوم ومساحة 162 متر مربع في سوديك فيليت، من تطوير سوديك في قلب القاهرة الجديدة. التصميم الداخلي يتيح دخول الضوء الطبيعي من كل زاوية، مع أربعة حمامات منها جناح خاص للمربية يضمن الراحة والخصوصية للجميع. منطقة المعيشة المفتوحة تمتد إلى تراس واسع بإطلالة خلابة، حيث يمكنك الاستمتاع بفنجان قهوة صباحي أو لحظات هادئة. التشطيبات الفاخرة، من خزائن المطبخ الأنيقة إلى وحدات الملابس المصممة، تضيف لمسة من الرقي لكل تفاصيل يومك. التكييف المركزي يضمن أجواء مثالية في جميع الأوقات، بينما الدمج الذكي بين المساحات الداخلية والخارجية يمنحك تجربة سكنية متكاملة تجمع بين الراحة والطبيعة. سواء كنت تستقبل ضيوفك في غرفة المعيشة المشرقة أو تستمتع بلحظاتك الخاصة، هذه الوحدة في سوديك فيليت هي أكثر من مجرد منزل؛ إنها مساحة للحياة الراقية في فيليت.
وصف الكمباوند
الصحة والبيئة
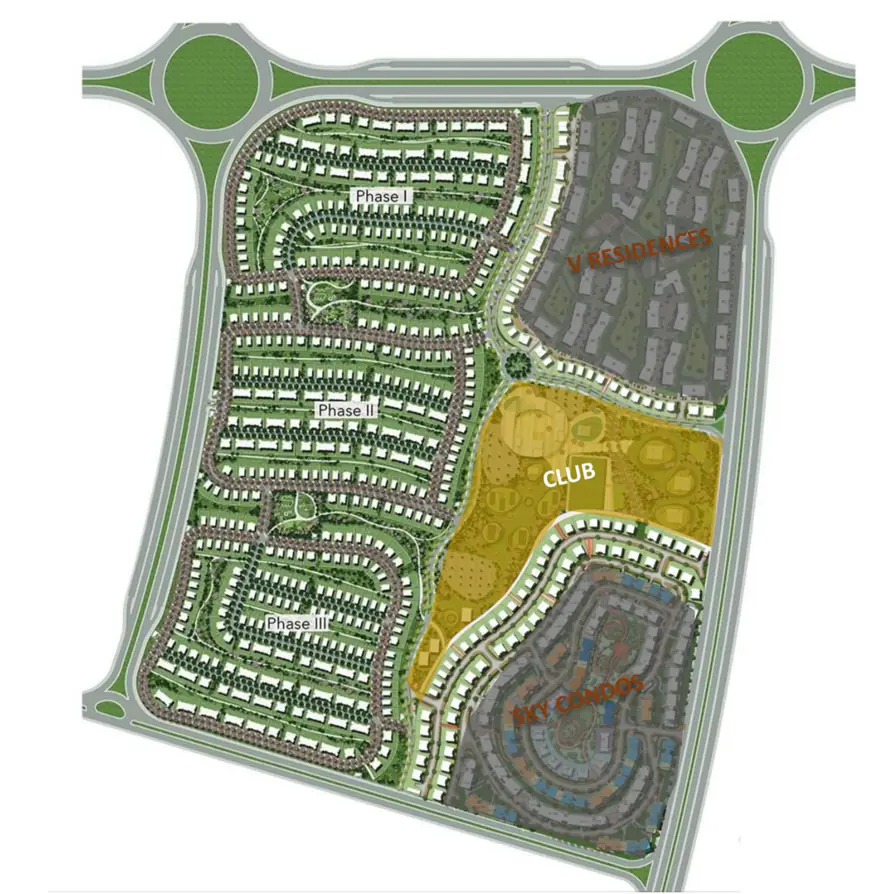
سوديك فيليت ليست مجرد مجموعة من المنازل، بل مجتمع ينبض بالحياة حيث الصحة والطبيعة جزء أساسي من كل يوم. المخطط الرئيسي من سوديك يضع الحدائق والمساحات الخضراء في قلب الكمباوند، لتكون كل وحدة قريبة من أجواء هادئة ومساحات مفتوحة. السكان يستمتعون بأشعة الشمس الصباحية ومسارات مخصصة للمشي وركوب الدراجات، مثالية للنزهات العائلية أو التأمل الفردي. البحيرات الصالحة للسباحة توفر ملاذًا منعشًا، بينما الزوايا الهادئة تمنحك فرصة للاسترخاء الذهني. الاستدامة هنا ليست مجرد شعار، بل واقع ملموس عبر أنظمة إدارة المياه والإضاءة الموفرة للطاقة التي تدعم نمط حياة صحي. نادي S في الكمباوند يقدم برامج كروس فيت ويوغا متطورة، وجيم حديث، وملاعب تنس وصالات اجتماعية، ليكون مركزًا متكاملًا للعناية بالجسم والروح. العائلات تستفيد من قرب المدارس الدولية مثل المدرسة الأمريكية الدولية، ومراكز الرعاية الصحية مثل مركز تبارك الطبي، وكلاهما على بعد أقل من 10 دقائق. خيارات التسوق والمطاعم، مثل ممشى إيست تاون، على بعد خطوات، لتصبح الحياة اليومية أكثر سهولة وإلهامًا. سوديك فيليت ليس مجرد مكان للسكن، بل بيئة ترفع من جودة حياتك وتمنحك شعورًا متجددًا كل يوم.
للاطلاع على تفاصيل الحياة في سوديك فيليت وخدمات الكمباوند، زر سوديك فيليت.















