وصف العقار
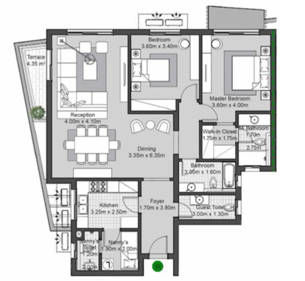
ادخل إلى هذه الشقة الخدمية الفاخرة المكونة من ثلاث غرف نوم بمساحة 150 متر مربع، وستشعر بجمال التصميم منذ اللحظة الأولى. تقع في V ريزيدنس فيليت من سوديك في مدينة القاهرة الجديدة، وتجمع بين الراحة والرقي. التصميم الداخلي يسمح بتدفق الضوء الطبيعي عبر النوافذ الكبيرة، ليبرز التشطيبات الفاخرة في كل زاوية. أربعة حمامات، منها غرفة مربية بحمام خاص، تجعل الحياة اليومية أكثر سهولة للعائلات أو لمحبي الاستضافة. التراس يطل على منظر خلاب يدعوك للاستمتاع بلحظات صباحية هادئة أو مساءات مريحة. التكييف وخزائن المطبخ ووحدات الملابس جاهزة لتبدأ حياتك دون عناء. تبدأ أيامك هنا بنور لطيف وخصوصية واضحة، سواء كنت تجمع العائلة أو تستمتع بلحظاتك الخاصة، هذا المنزل في سوديك فيليت يمنحك مستوى معيشة أعلى كل يوم.
وصف الكمباوند
الموقع والاتصال
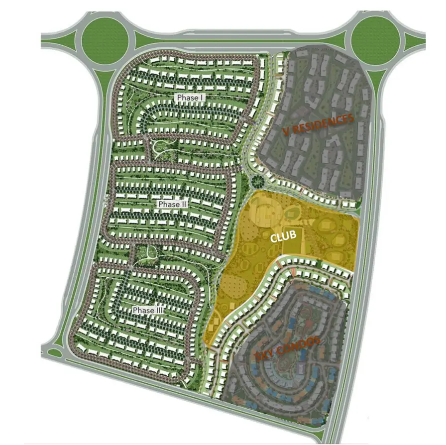
يتميز كمباوند فيليت من سوديك بموقعه المثالي في قلب القاهرة الجديدة وسهولة الوصول لكل ما تحتاجه. يقع بالقرب من طريق التسعين، فلا يستغرق وصولك إليه سوى أقل من خمس دقائق، مما يجعل التنقل اليومي والمدارس أسهل بكثير. وسط القاهرة على بعد 15 دقيقة فقط بالسيارة، فتشعر بالقرب من نبض المدينة دون أن تفقد هدوء المكان. منطقة إيست تاون الحيوية بجوارك مباشرة، توفر لك خيارات متنوعة للتسوق والمطاعم والترفيه. العائلات ستجد المدارس الدولية مثل المدرسة الأمريكية الدولية وليسيه الفرنسية على مقربة، كما يسهل على المحترفين الوصول إلى مناطق الأعمال والمراكز الطبية مثل مستشفى كليوباترا. تصميم الكمباوند يضمن سهولة الحركة بين أجزائه، مع شوارع واسعة وممرات للدراجات ومناطق مظللة للمشي. المرافق التجارية والمطاعم موزعة بعناية لتكون في متناول يدك دائمًا. مشاريع البنية التحتية الجديدة ستزيد من سهولة الوصول، مع طرق وروابط مواصلات عامة قادمة. فيليت ليس مجرد مكان للسكن، بل بوابة لكل ما تقدمه القاهرة الجديدة، تجمع بين الفخامة والعملية في عنوان واحد.
للتعرف على تفاصيل الحياة في سوديك فيليت وخدمات الكمباوند، زر صفحة سوديك فيليت.















