Property Description
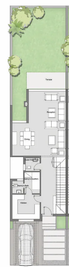
Step inside this inviting three-bedroom townhouse, thoughtfully designed across 229 SQM in Palm Hills New Cairo by Palm Hills, set within the vibrant heart of New Cairo. With four bathrooms, a dedicated nanny’s room with its own bath, and a generous roof terrace of 56 SQM, this home is made for both lively gatherings and peaceful retreats. The flow between living spaces feels effortless, sunlight streaming in through wide windows and glass doors, drawing you out to two private terraces that frame sweeping garden views. Mornings here begin with golden light spilling across the breakfast table, while evenings invite you to unwind outdoors, savoring the breeze and the city’s distant hum. Premium finishes and clever storage solutions add a layer of everyday luxury, while the layout ensures privacy for every family member. Whether you’re hosting friends on the rooftop or enjoying quiet moments in the garden, this townhouse in Palm Hills New Cairo is a canvas for cherished routines and new traditions, blending comfort with a sense of arrival that welcomes you home every single day.
Compound Description
Community & Lifestyle
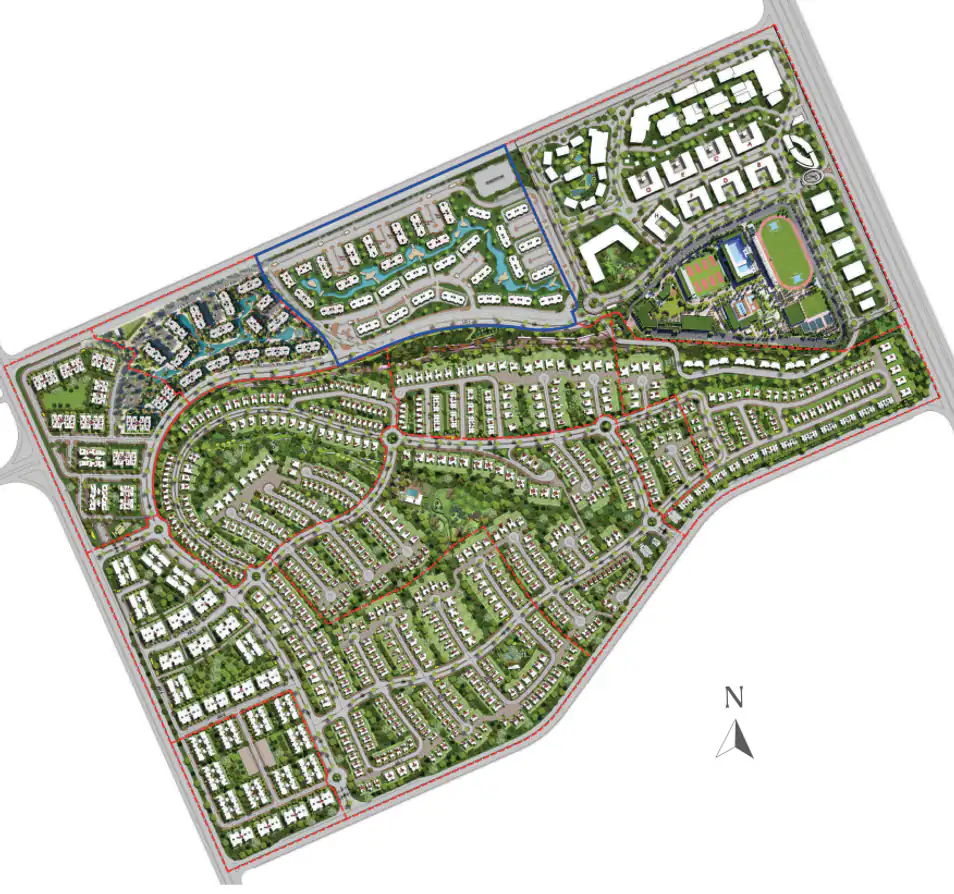
Palm Hills New Cairo is more than a collection of homes—it’s a living, breathing community where neighbors become friends and every day brings new possibilities. The masterplan is shaped by a vision of connection: 400 feddans dedicated to residential life, interwoven with 100 feddans of commercial and leisure spaces. Here, families gather in Ridge Park for weekend picnics, children race along shaded trails, and friends meet at the vibrant community center for coffee or conversation. The compound pulses with life, from seasonal events and outdoor movie nights to wellness workshops and sports tournaments at the expanded Palm Hills Sports Club. Education is at your doorstep with King’s School New Cairo, while healthcare and daily conveniences are just a stroll away. The design encourages movement—bike paths wind through leafy avenues, and every home is within reach of tranquil gardens or lively plazas. Residents enjoy a curated mix of amenities:
- Family-friendly parks and scenic walking trails
- A luxurious spa and hotel for relaxation and hosting guests
- Diverse dining and retail experiences
- Professional healthcare services and quality education
- Community events and social clubs fostering real connections Living at Palm Hills New Cairo means embracing a lifestyle where every detail is considered, and every day feels both effortless and inspiring. For a complete overview of Palm Hills New Cairo’s amenities and lifestyle, explore Palm Hills New Cairo.



















