Property Description
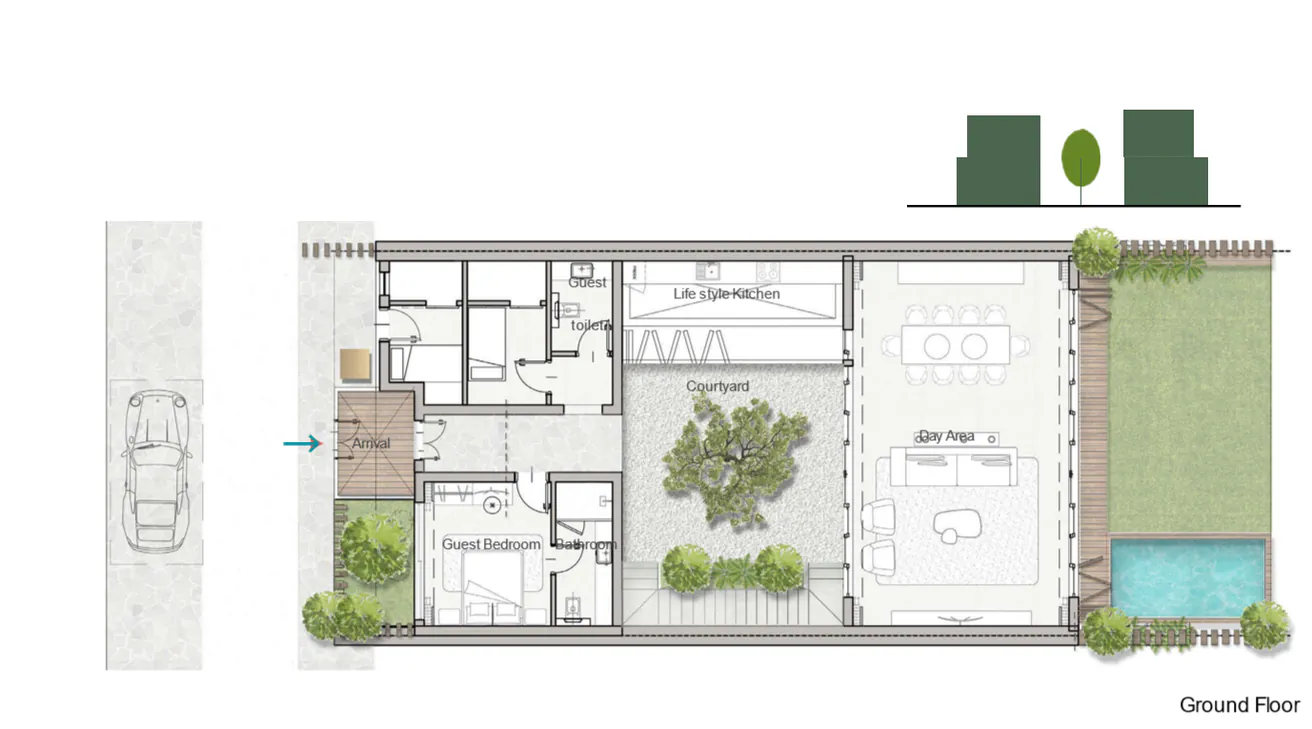
Step inside this fully finished six-bedroom villa, a true haven of luxury living in Hacienda Heneish by Palm Hills, set along the sun-kissed shores of the North Coast. Spanning 325 SQM, the villa welcomes you with a sense of arrival that’s both grand and inviting. Seven bathrooms ensure comfort for every member of the family and guests, while thoughtful additions like a nanny’s room and a driver’s room—each with its own private bathroom—make daily life seamless. The flow of the home is effortless, with natural light pouring through wide windows and illuminating every corner. Step out onto the terrace and you’re greeted by a breathtaking view, the kind that makes morning coffee feel like a ritual worth savoring. The outdoor experience is elevated by a 14 SQM pergola area, perfect for sunset gatherings or quiet afternoons with a book. Every detail, from premium finishes to the integration of indoor and outdoor spaces, is designed to enhance your connection to the coastal landscape. Here, family moments unfold naturally, and entertaining feels effortless—this villa is more than a residence, it’s a canvas for cherished memories in Hacienda Heneish.
Compound Description
Luxury & Services
Hacienda Heneish is where the art of coastal living meets the highest standards of luxury and service. The moment you enter the gates, you’re greeted by a sense of exclusivity and warmth that sets the tone for every day. The beachfront hotel, with its Mediterranean-inspired elegance, offers five-star hospitality—think attentive concierge, gourmet dining, and seamless access to the sparkling shoreline. Residents enjoy a modern clubhouse, a hub for social events, wellness activities, and relaxing lounges that invite you to linger. The compound’s commercial strip brings upscale dining and daily essentials within easy reach, so you never have to compromise on convenience or quality. For families, dedicated kids’ zones and safe play areas mean every generation finds their own rhythm of joy. The landscape is dotted with expansive lagoons and pools, creating a tapestry of green and blue that soothes the senses. Security and privacy are woven into the fabric of the community, with discreet services ensuring peace of mind. Here, luxury isn’t just about finishes—it’s about the thoughtful touches: valet parking, housekeeping, and curated events that make every season special. Whether you’re hosting friends or seeking a quiet retreat, Hacienda Heneish delivers an elevated lifestyle where every detail is considered. For a complete overview of Hacienda Heneish’s amenities and lifestyle, explore Hacienda Heneish.














