Property Description
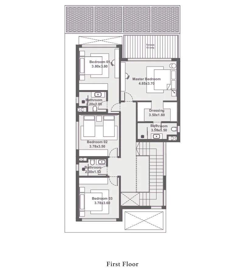
Step inside this fully finished six-bedroom villa, a true haven of comfort and space at Zoya by LMD on Egypt’s North Coast. Spanning 300 SQM, the villa welcomes you with a thoughtful layout that flows effortlessly from one sunlit room to the next. Each of the six bathrooms is designed for privacy and ease, including dedicated spaces for a nanny and a driver—each with their own bathroom, so daily routines run smoothly for every member of the household. The heart of the home opens onto two generous terraces, where you’ll find yourself drawn to breathtaking views that shift with the light, inviting you to linger outdoors. The private garden wraps the villa in green tranquility, perfect for morning coffee or family gatherings under the open sky. Air conditioning throughout ensures comfort in every season, while premium finishes add a touch of understated luxury. Whether you’re hosting lively celebrations or savoring quiet moments, this villa at Zoya is crafted for those who appreciate both elegance and functionality. It’s a place where every detail—from the flow of natural light to the seamless connection between indoor and outdoor spaces—makes daily living feel special.
Compound Description
Wellness & Environment
Zoya by LMD is more than a collection of homes—it’s a living environment shaped by a deep commitment to wellness and harmony with nature. The masterplan unfolds across 134 acres, with each residence thoughtfully positioned to maximize green space and minimize density, so you always feel a sense of breathing room. Cascading gardens and lush landscaping create a tapestry of color and calm, while private terraces offer panoramic views of the shimmering Mediterranean and the gentle contours of Ghazala Bay. Here, wellness isn’t just a feature—it’s woven into daily life. Residents enjoy floating pools designed for relaxation, a modern spa and gym for holistic health, and jogging lanes that wind through verdant scenery. Water management systems and energy-efficient design help preserve the environment, ensuring every sunrise is as beautiful as the last. Zoya’s community programs encourage outdoor living, from yoga sessions at dawn to family picnics in shaded groves. The compound’s proximity to the beach—just a five-minute walk—means fresh sea air and restorative swims are always within reach. For families, dedicated play zones and safe swimming areas nurture childhood joy and creativity. Zoya’s commitment to wellness extends to every detail, making it a place where you can truly recharge and reconnect. For a complete overview of Zoya’s amenities and lifestyle, explore Zoya.

















