Property Description
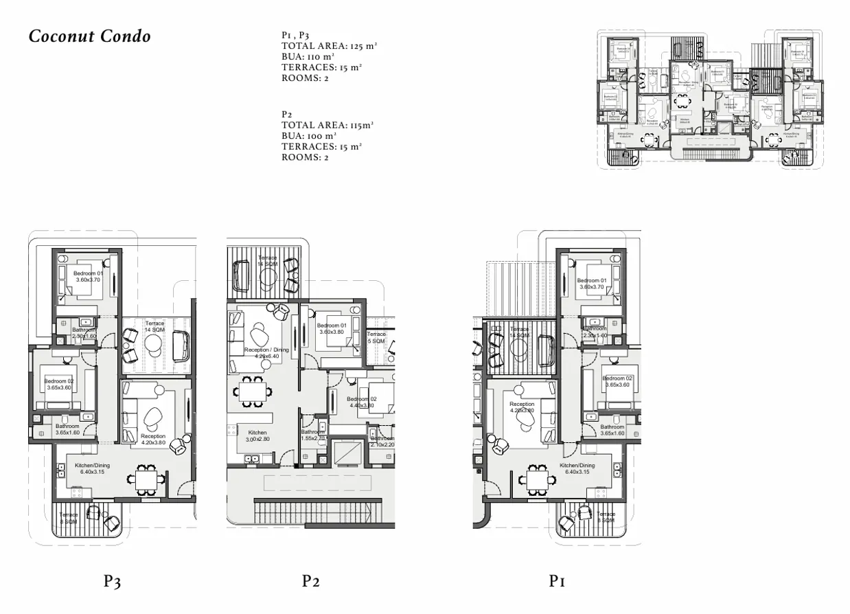
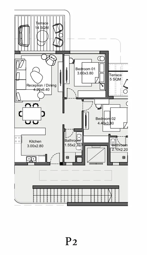
Step inside this fully finished two-bedroom chalet, a welcoming retreat of 115 SQM tucked within Zoya by LMD on Egypt’s North Coast. With two bathrooms and a pair of generous terraces, the home is designed for those who crave both comfort and connection to nature. Early morning light pours through wide glass doors, illuminating the living spaces and drawing you out to terraces that frame a breathtaking view—where the horizon seems to stretch endlessly. The layout flows effortlessly, making every movement from kitchen to lounge feel natural, whether you’re hosting friends or savoring a quiet breakfast. Premium finishes and thoughtful touches—like integrated air conditioning and contemporary flooring—set the tone for elevated living. The terraces become your stage for sunset gatherings, lazy afternoons, or simply soaking in the fresh coastal air. Here, every detail is crafted to enhance your daily rituals, from the first cup of coffee to evening conversations under the stars. Zoya isn’t just a place to stay; it’s where your best moments unfold, surrounded by the gentle rhythm of the North Coast and the signature style of LMD. The property’s positioning ensures privacy without sacrificing the vibrant energy of the community, making it ideal for couples, small families, or anyone seeking a refined escape.
Compound Description
Wellness & Environment
Zoya by LMD is more than a collection of homes—it’s a living environment shaped for wellbeing and renewal. The masterplan stretches across 134 acres, with lush gardens and cascading green levels that invite you to breathe deeply and unwind. Every residence is positioned to maximize panoramic views, so you wake to sunlight filtering through leaves and the soothing palette of the Mediterranean. The community’s wellness philosophy is woven into daily life: floating pools offer a tranquil swim, while the spa and modern gym provide spaces to recharge body and mind. Jogging lanes wind through landscaped paths, encouraging morning runs or evening strolls beneath open skies. Sustainability is at the heart of Zoya, with water management systems and energy-efficient lighting designed to preserve the natural beauty of the North Coast. Families find peace of mind in dedicated play zones and calm bay waters, where children can explore safely. The compound’s thoughtful integration of nature and architecture means you’re never far from a quiet garden nook or a vibrant social hub. Residents enjoy boutique hospitality, from gourmet dining at Rituals of Zoya Ghazala Bay to curated wellness programs and seasonal community events. Zoya’s location places you within approx. 4 km of essential conveniences—retail, medical clinics, and schools—while keeping the beach just a five-minute walk away. Here, every day is an invitation to reconnect with yourself and the world around you. For a complete overview of Zoya’s amenities and lifestyle, explore Zoya.


















